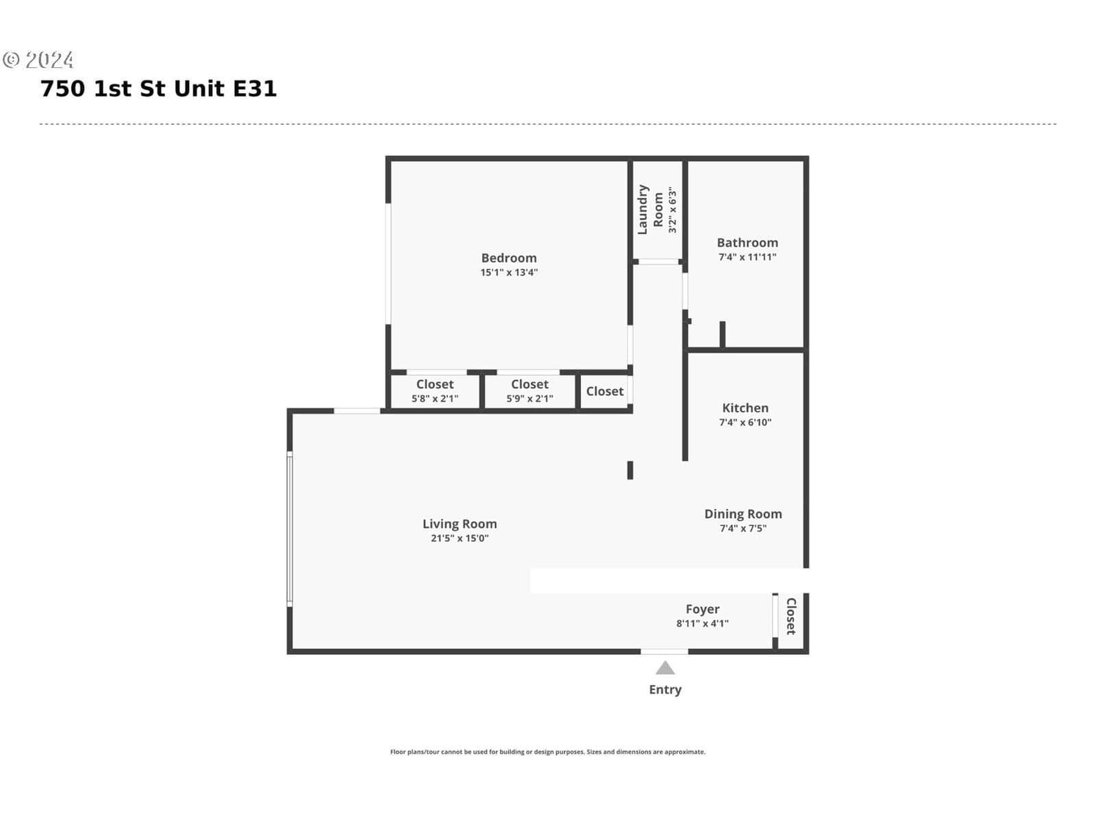
750 1ST ST #E31, Lake Oswego, OR, 97034 | Brantley Christianson Real Estate | Brantley Christianson Real Estate