/
$545,900
3days on market$545,900
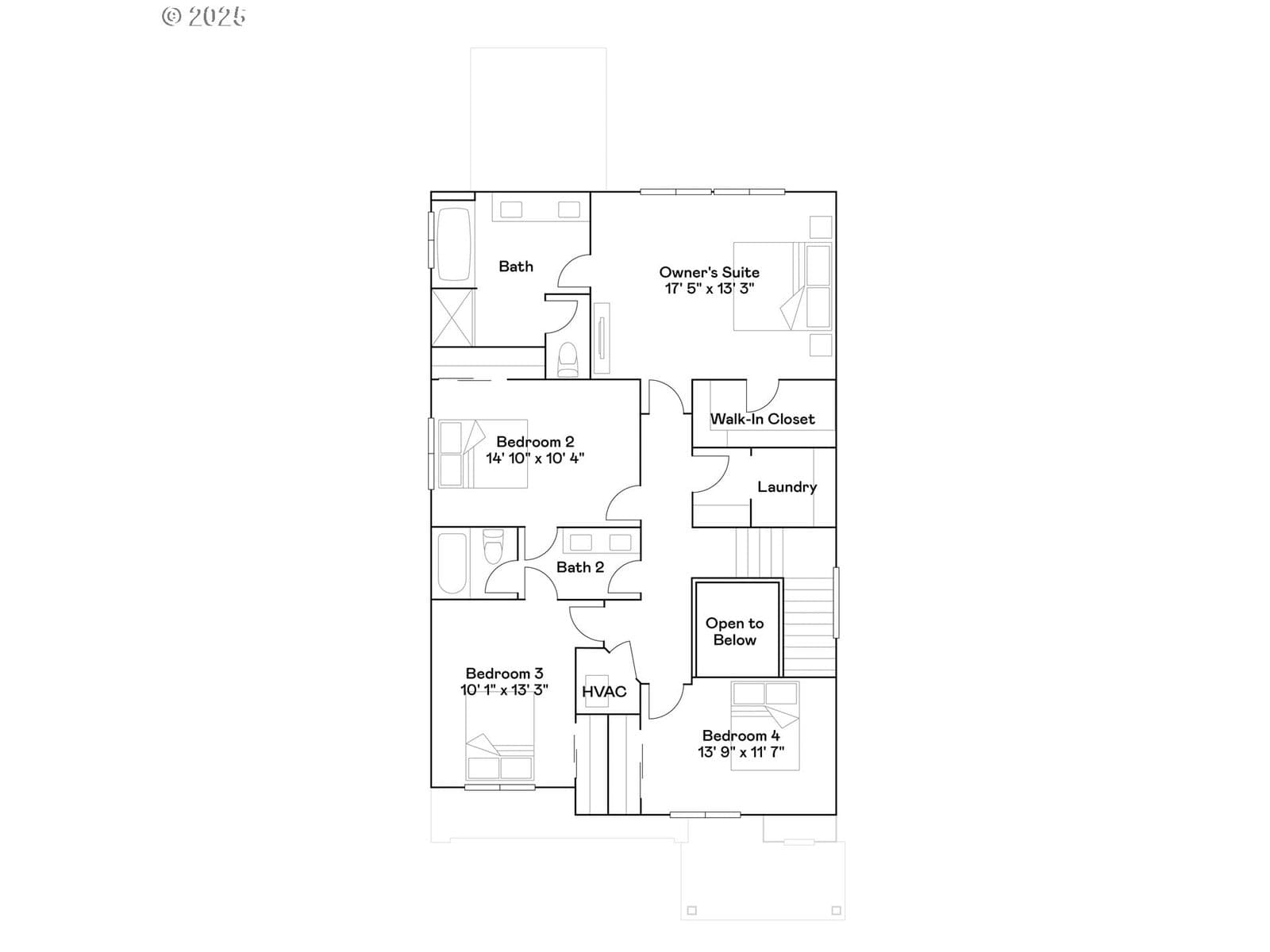
Welcome to Henshaw Farm by Lennar, a new community offering convenient access to Simpson Park, Linn-Benton Community College, downtown historic Albany, and the Golf Club of Oregon, all within a 16-min drive. The new construction Ashland plan offers a spacious two-story design with a 3-car garage, balancing comfort and functionality. The first floor showcases an open layout connecting the great room, kitchen, and dining area, with a sliding glass door leading to the patio for easy indoor-outdoor entertaining. A nearby tech space provides the perfect spot for work or study. Upstairs are four bedrooms, including the spacious primary suite with an ensuite bathroom featuring a double vanity, separate soaking tub and shower, and a walk-in closet. Two bedrooms share a Jack-and-Jill style bathroom. Interior highlights include quartz countertops, Shaker-style cabinets, LVP (luxury vinyl plank) flooring in the kitchen and entry way, LVT (luxury vinyl tile) flooring in the bathrooms, two-tone interior paint, full landscaping, fencing, and a fireplace with a floating mantle. This home also comes complete with central air conditioning, a refrigerator, washer and dryer, and blinds—all at no extra cost. Set in the heart of the Willamette Valley, Albany is a friendly and picturesque city that blends small-town charm with modern conveniences. A walkable downtown, scenic riverfront parks, and easy access to Corvallis and Salem make it an inviting place to call home. Rendering is artist conception only. Photos are of a similar home, features and finishes will vary. Estimated completion: June 2026. Homesite: 206.
Extras & features
Washer, Dryer, Dishwasher, Disposal, Free-Standing Gas Range, Free-Standing Refrigerator, Microwave, Plumbed For Ice Maker
Legal description
At Title
Building amenities
$514,900
2658 Mt Saint Helens Ave SESalem, OR 97302
Status: EXP
4 beds · 3 baths · 2,288 SQFT
Walk Score data provided by Walk Score®