/
$699,000
78days on marketSold$699,000 · February 23, 2026
$699,000
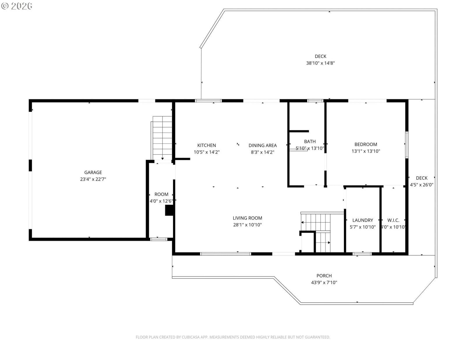
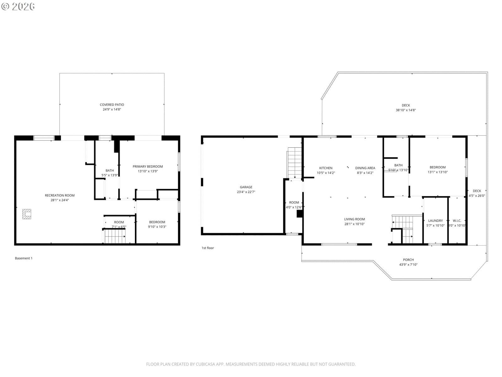
Welcome to this rare, private 2-acre daylight ranch nestled in a serene, tree-surrounded setting along Abernathy Creek. This truly special property offers peaceful seclusion with beautiful natural views in every direction. The main level features a spacious open floor plan, ideal for both everyday living and entertaining. The kitchen includes an island perfect for gatherings, while the primary bedroom on the main level offers an ensuite bathroom and an oversized walk-in closet. A convenient laundry room with a sink is also located on the main floor for ease of living Enjoy the tranquil surroundings from the expansive wraparound deck or through the many large windows that bring the outdoors in. The lower level includes a generous family room with high ceilings, a cozy wood-burning stove, and two additional bedrooms.Outside, you’ll find a gazebo, garden shed, an 18 x 20 aluminum shop with a gravel floor—perfect for hobbies, storage, or projects. This property is a rare blend of privacy, nature, and comfortable living. Cameras on property and showings by appointment only.
Extras & features
Oven, Washer, Dryer, Built-In Refrigerator, Dishwasher
Legal description
TOWNSHIP 3S RANGE 2E SECTION 12 QUARTER A TAX LOT 00500 & VAC RD
Walk Score data provided by Walk Score®