/
$550,000
65days on marketSold$555,000 · February 24, 2026
$550,000
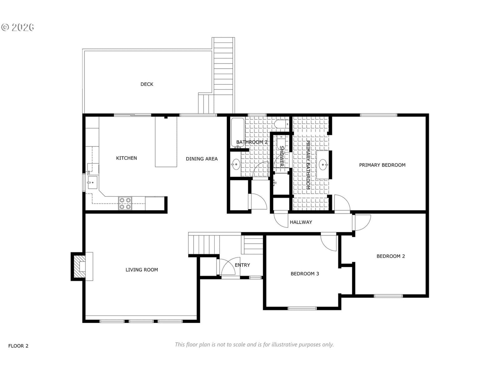
Contemporary, clean, and completely move-in ready, this Marpol Ridge split level home offers 2,436 sq ft of thoughtful updates & incredible ADU potential! Beautiful stone fireplace & picture windows invite natural light to your living/dining/kitchen space. The open kitchen is designed for gathering with quartz counters, full tile backsplash, built-in appliances, eating bar and a slider opening to a large composite deck with gorgeous territorial views. Easy-care laminate flooring and contemporary fixtures throughout create a simple aesthetic that feels elevated yet welcoming. Downstairs offers exceptional flexibility with a spacious family room featuring a gas fireplace, adjacent kitchenette/bar with sink and mini fridge, all opening to a covered patio for seamless indoor/outdoor living. Also on the lower level, with its own exterior entry, is a fully finished fourth bedroom or in-law suite complete with bathroom and kitchenette including refrigerator, microwave, dishwasher and sink - ideal for ADU potential, multigenerational living, or creative flex space. For added convenience, all appliances are included and abundant storage adds everyday ease, including a large backyard shed. Outdoors, enjoy a fully fenced yard with a second view deck, raised garden beds, fire pit with seating area, and room to run, play, or relax. Near Butler Park with lake, trails, and picnic areas. Open House this Saturday, Feb. 21, 11am–1pm and Sunday, Feb. 22, 1pm–3pm. Ask about our preferred lender's buy down option for this home!
Extras & features
Oven, Gas Water Heater, Washer, Dryer, Cooktop, Dishwasher, Disposal, Free-Standing Refrigerator, Microwave
Legal description
MARPOL RIDGE, BLOCK 5, LOT 3
Building amenities
Walk Score data provided by Walk Score®