/
$499,900
206days on marketSold$499,900 · February 5, 2026
$499,900
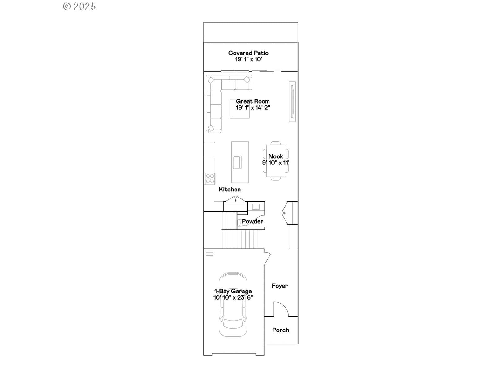
This new construction townhome is located in Scholls Heights, a community near greenspaces, shopping, schools, and dining. The Harper plan offers an open main floor with a modern kitchen, dining area, and great room leading to a covered patio with xeriscape landscaping. Upstairs, three bedrooms are located near a versatile loft, including the primary suite with a spa-inspired bathroom and walk-in closet. Interior highlights include quartz countertops, upgraded slab-style cabinets with under cabinet lighting, and luxury vinyl plank flooring. Other upgraded premium features include a picket-style backsplash and matte black hardware. This home also includes central air conditioning, a refrigerator, washer and dryer, and blinds—all at no extra cost! Rendering is artist conception only. Photos are of a similar home, features and finishes will vary. Below-market rate incentives available when financing with preferred lender! Harper Plan, Homesite # 104, Move-In-Ready!
Extras & features
Washer, Dryer, Dishwasher, Disposal, Free-Standing Range, Free-Standing Refrigerator, Microwave
Legal description
Scholls Heights lot 104
Building amenities
Walk Score data provided by Walk Score®