/
$462,400
129days on marketSold$462,400 · February 7, 2026
$462,400
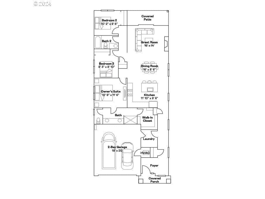
The Avery floor plan uses every square inch efficiently! Spacious kitchen offers quartz counters, S/S appliances, island & pantry. Open dining & living area leads to the covered back patio offering great comfort. Primary suite is complete w/ large dual vanity, step in shower and roomy walk-in closet. The other two sizable rooms share a 2nd bath. Price includes: Air Conditioning, blinds, refrigerator, washer, and dryer, front yard landscaping and backyard fencing. Move-In Ready April 2026! Photos of a similar home. Incentives available with preferred lender. HS 202.
Extras & features
Gas Water Heater, Washer, Dryer, Dishwasher, Disposal, Free-Standing Range, Free-Standing Refrigerator, Microwave, Plumbed For Ice Maker
Legal description
At Title.
Building amenities
Walk Score data provided by Walk Score®