/
$799,900
96days on marketSold$780,000 · February 26, 2026
$799,900
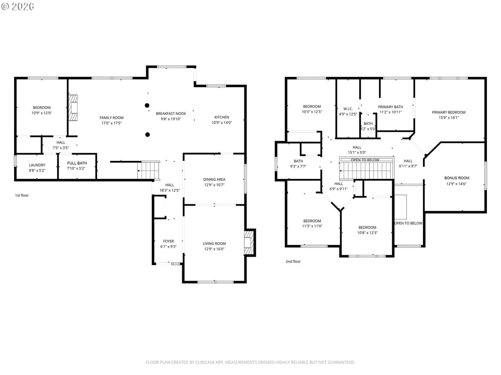
Beautifully maintained Bethany home offering space, comfort, and a serene backyard retreat. This light-filled 5-bed, 3-bath residence features a flexible main-level bedroom ideal for guests, work, or fitness. The open layout creates an inviting flow, with large windows overlooking a private, fenced yard complete with a tiered water feature—an ideal setting for relaxing or entertaining.The expansive kitchen is a standout, offering generous counter space, a large island, stainless steel appliances, gas cooking, and abundant storage. Formal living and dining areas provide additional room for gatherings. Upstairs, the spacious primary suite includes a walk-in closet and a well-appointed bath with double sinks, a soaking tub, and a separate shower. A dedicated media room adds even more versatility, perfect for movie nights or a play space.An attached 3-car garage offers excellent storage and convenience. Located in the highly desirable Bethany community with access to parks, trails, and top-rated schools, plus an easy commute to Nike, Intel, and Downtown Portland. A wonderful blend of space, style, and location—this home is truly one to see.
Extras & features
Oven, Gas Water Heater, Cooktop, Dishwasher, Free-Standing Refrigerator
Legal description
WILLOW CREEK HEIGHTS, LOT 54, ACRES 0.18
Walk Score data provided by Walk Score®