/
$450,000
100days on marketSold$440,000 · March 3, 2026
$450,000
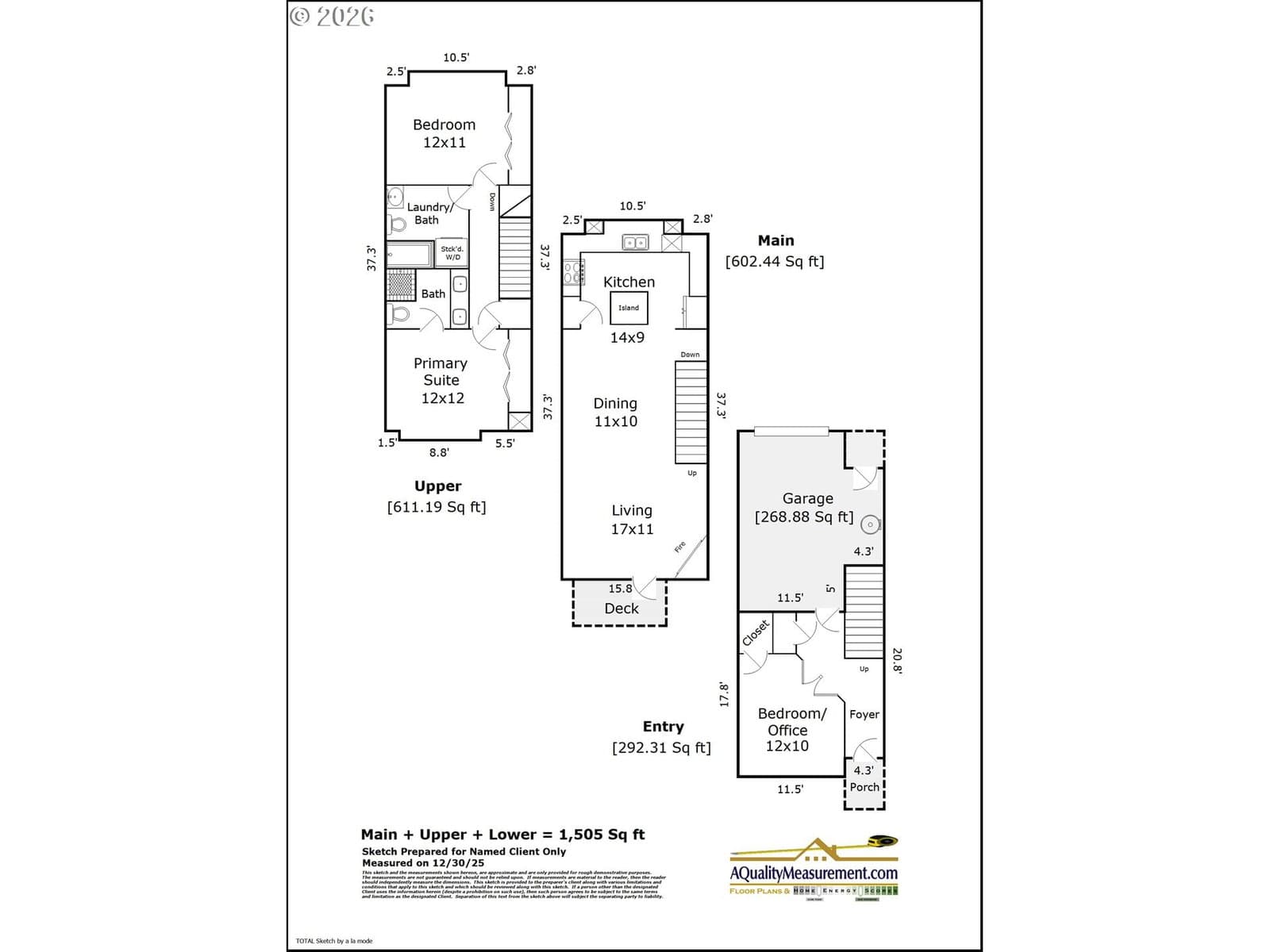
Steps to coffee shops, restaurants, and miles of trails along the Columbia River, this rich, layered residence has a distinct urban sensibility designed for buyers who value access, flexibility, and intentional use of space. The layout spans three thoughtfully designed levels, offering separation & versatility. The ground level features a private den/office with French doors and a closet, ideal as a dedicated work-from-home space, guest room, or third bedroom. The main living level is open and efficient, designed in a great-room style that connects the kitchen, dining, and living areas into one cohesive space. Brazilian cherry hardwood floors run the length of the level, creating a long, clean sightline from the kitchen through the living room and reinforcing the home’s sense of depth and scale. The floors anchor the space, while reclaimed wood accent walls add warmth, texture, and visual interest, giving the room character without sacrificing function. The upper level includes two generously sized bedrooms that provide comfortable separation for everyday livability. The primary suite features vaulted ceilings, a custom-built closet system, and an ensuite bath. Interior finishes throughout the home are bold and intentional, with rich, modern paint tones complementing the wood elements. Thoughtful custom closet organization adds practical touches, and all-electric systems help keep ownership simple. Tucked along the interior of Fairwinds Loop in Building H, the unit offers a private, protected setting within the community. Recent improvements include full interior repiping (assessment paid by seller at closing) and fresh interior paint. Parking includes an attached single-car garage with storage space, plus one additional designated driveway parking spot. The HOA offers a strong amenity package including a pool, hot tub, gym, community room, garden, playground, and dog-friendly features. Short-term rentals are permitted with a minimum of 7 days.
Extras & features
Washer, Dryer, Dishwasher, Disposal, Free-Standing Range, Free-Standing Refrigerator, Microwave
Legal description
NORTHWYND CONDOMINIUMS AT COLUMBIA SHORES UNIT 723 H FOR ASSESSOR
Building amenities
Walk Score data provided by Walk Score®