/
$349,000
88days on marketSold$349,000 · February 10, 2026
$349,000
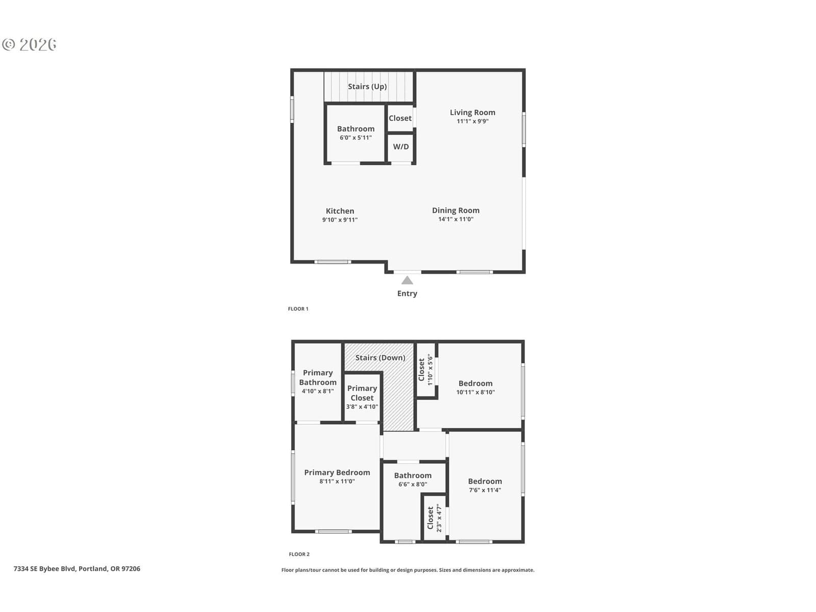
Buyer has the option to choose between a 3-bed layout or a more spacious 2-bed with walk-in closets. Experience this stunning, designer-crafted townhome that perfectly balances high-end style with functional SE Portland living. Professionally curated by a premier interior designer, this 3-bed, 2.5-bath home offers an incredible sense of volume and luxury. The main floor boasts soaring 10' ceilings, perfectly complemented by 9' ceilings on the second floor, creating an airy and expansive atmosphere rarely found in new construction. The interior is a masterpiece of design, featuring premium LVP flooring extending throughout the unit. The gourmet kitchen is a chef's dream, anchored by thick quartz countertops and oversized cabinetry. Upstairs, the bathrooms showcase custom artistry with a sleek tile shower and the other bathroom has a full tile bathtub surround. Unique to this property is the massive 9'x25' attic space. With a standing-height center, this versatile area is perfect for storage, or you can make it into your own man/woman cave. The exterior showcases high-end curb appeal with authentic cedar shake siding and elegant tongue-and-groove accents. LOCATION & LIFESTYLE: Situated in the heart of the Brentwood-Darlington community, this home is an outdoor lover's paradise. You are just blocks from the newly reimagined 16-acre Errol Heights Park, featuring walking trails, boardwalks, and wildlife viewing. Biker’s rejoice with easy access to the Springwater Corridor trail for a scenic commute or weekend ride to Sellwood and beyond. This unit is sold with its own land through the Middle Housing Land Division (MHLD) process, providing total ownership with no HOA fees. Comes with a 1-year builder warranty. Listing agent has interest in the property. INVESTMENT & SAVINGS NOTE: The advertised list price reflects a $30,000 savings through the Portland SDC Exemption program.
Extras & features
Oven, Built-In Range, Dishwasher, Disposal, Microwave, Plumbed For Ice Maker
Legal description
GASTON TR, W 36.6' OF E 121.6' OF S 86.9' OF LOT 6 EXC PT IN ST
Walk Score data provided by Walk Score®