/
$599,000
67days on marketSold$617,000 · March 2, 2026
$599,000
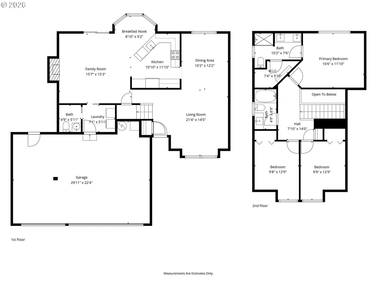
Welcome home to easy living in the desirable Oregon Trail neighborhood. This conveniently located two-story traditional home features tasteful updates and a comfortable, flowing floor plan designed for everyday living and easy entertaining. Vaulted ceilings make this floor plan feel so light and spacious. Easy access to downtown, schools and shopping add to the convenience of this location.Beautiful luxury vinyl flooring offers both style and low-maintenance durability. Quartz countertops and custom cabinetry in the kitchen and bathrooms add a timeless, upscale touch. The kitchen is a true gathering space with an eat bar, charming breakfast nook, and formal dining room — all seamlessly connected to two spacious living areas with the kitchen at the heart of the home.Sliding doors off the family room open to a generous patio and beautifully maintained backyard, perfect for entertaining or relaxing outdoors.Upstairs, you’ll find three well-sized bedrooms and two additional full bathrooms. Generous room sizes and abundant storage throughout make this home as functional as it is inviting.A three-car garage provides flexible space for parking, hobbies, or extra storage. The professionally landscaped exterior features low-maintenance grounds, room for RV parking, and a versatile powered shed ideal for potting, woodworking, or additional storage.
Extras & features
Gas Water Heater, Dishwasher, Disposal, Free-Standing Range, Free-Standing Refrigerator, Microwave
Legal description
OREGON TRAIL, LOT 36, ACRES 0.14
Building amenities
Walk Score data provided by Walk Score®