/
$754,500
275days on marketSold$754,500 · February 9, 2026
$754,500
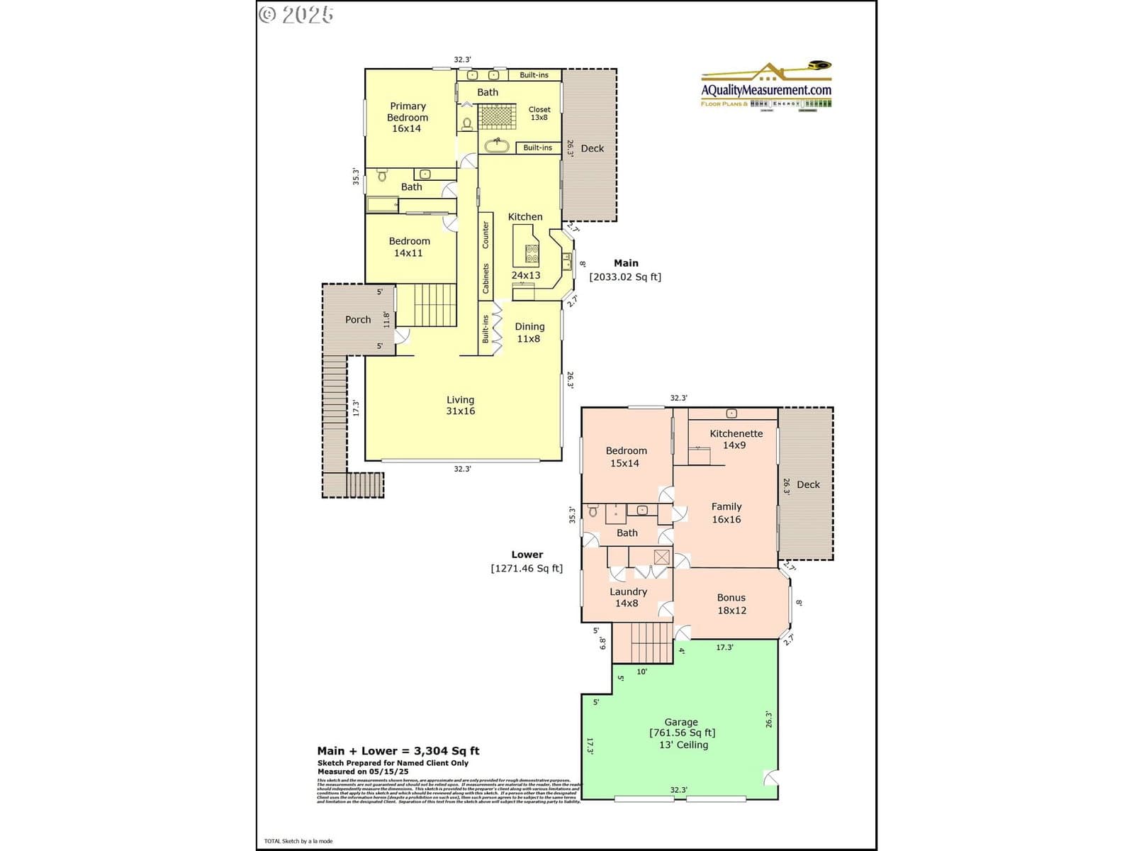
See you at the Open House. Amazing spacious mid-century stylized, cool vibe w/modern open floor plan w/high end features and finishes. Super refreshed kitchen w/chef's gourmet granite Island cooking opens to deck for outdoor cooking. Located in the heart of Cedar Mills-Bethany neighborhoods welcome to this cool curated light & bright home that invites natures living into your home w/serene tree views for every window. On the garden level a newly refreshed kitchenette opens to bonus room & deck that provides the options and opportunity for multi-generational living or create a successful Airbnb for a short or long term rental potential for vacations/weddings/graduations/wine country tours. Living on the main level features vaulted living & dining room w/lounge room w/built-in cabinetry & storage. The main kitchen offers breakfast bar & eating space, garden window for herbs w/stainless steel appliances. The primary bedroom is spacious featuring a deluxe spa style bathroom w/freestanding soak tub, walk-in shower + spectacular walk-in dressing room w/lots & lots of organized closet storage. The home has a private drive w/motor court, abundance of mature landscaping w/flowering trees & plants. Imagine and create spacefor an outdoor spa, organic garden or chicken coop. All nestled on leveled fenced .30 acre lot w/ADU potential or there are lots of options to add additional outdoor features. The custom dream garage is 761 sq. ft. featuring a custom car lift for upper 3rd car bay. Additionally custom tool or sport storage cabinets w/workbench, plus a hoist adds to your many sport options. Bonus exterior parking up to 6+ cars. The oversize laundry room is spacious and features newer washer/dryer, built-in + w/walk-in closet for storage. The home is located in unincorporated Washington county minutes to Nike + Columbia Sports + High Tech, Medical Center campuses. Sunset High School & great schools, parks, shopping nearby, location is a running, walking & cycling paradise.
Extras & features
Oven, Gas Water Heater, Washer, Dryer, Built-In Range, Convection Oven, Dishwasher, Disposal, Free-Standing Refrigerator, Range Hood
Legal description
ACRES 0.30
Walk Score data provided by Walk Score®