/
$499,950
44days on marketSold$475,000 · April 9, 2026
$499,950
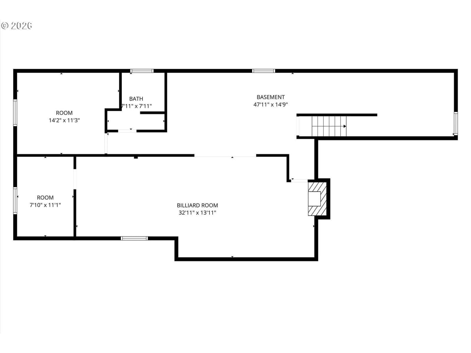
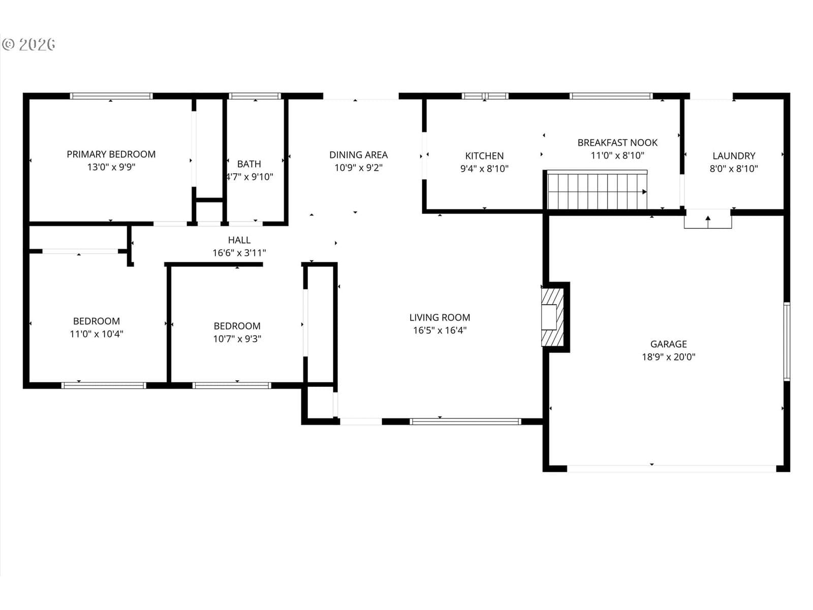
Well-cared-for 1960’s ranch home, owned by the same family for over 50 years. This 3 bedroom, 2 bathroom home features a light-filled living room with fireplace and large picture window, and a dining room with a newer quality slider opening to a nicely maintained fenced backyard with a covered deck—perfect for relaxing or entertaining. The full, partially finished basement provides great flexibility with an additional fireplace and abundant storage. Located on a quiet dead-end street that ends at Ventura Park Grade School. New roof and water heater offer added peace of mind. Great opportunity to update and make it your own. [Home Energy Score = 3. HES Report at https://rpt.greenbuildingregistry.com/hes/OR10245667]
Extras & features
Oven, Gas Water Heater, Washer, Dryer, Cooktop, Dishwasher, Free-Standing Refrigerator
Legal description
BURNSIDE PK, BLOCK 2, LOT 16
Walk Score data provided by Walk Score®