/
$449,000
127days on marketSold$449,000 · February 23, 2026
$449,000
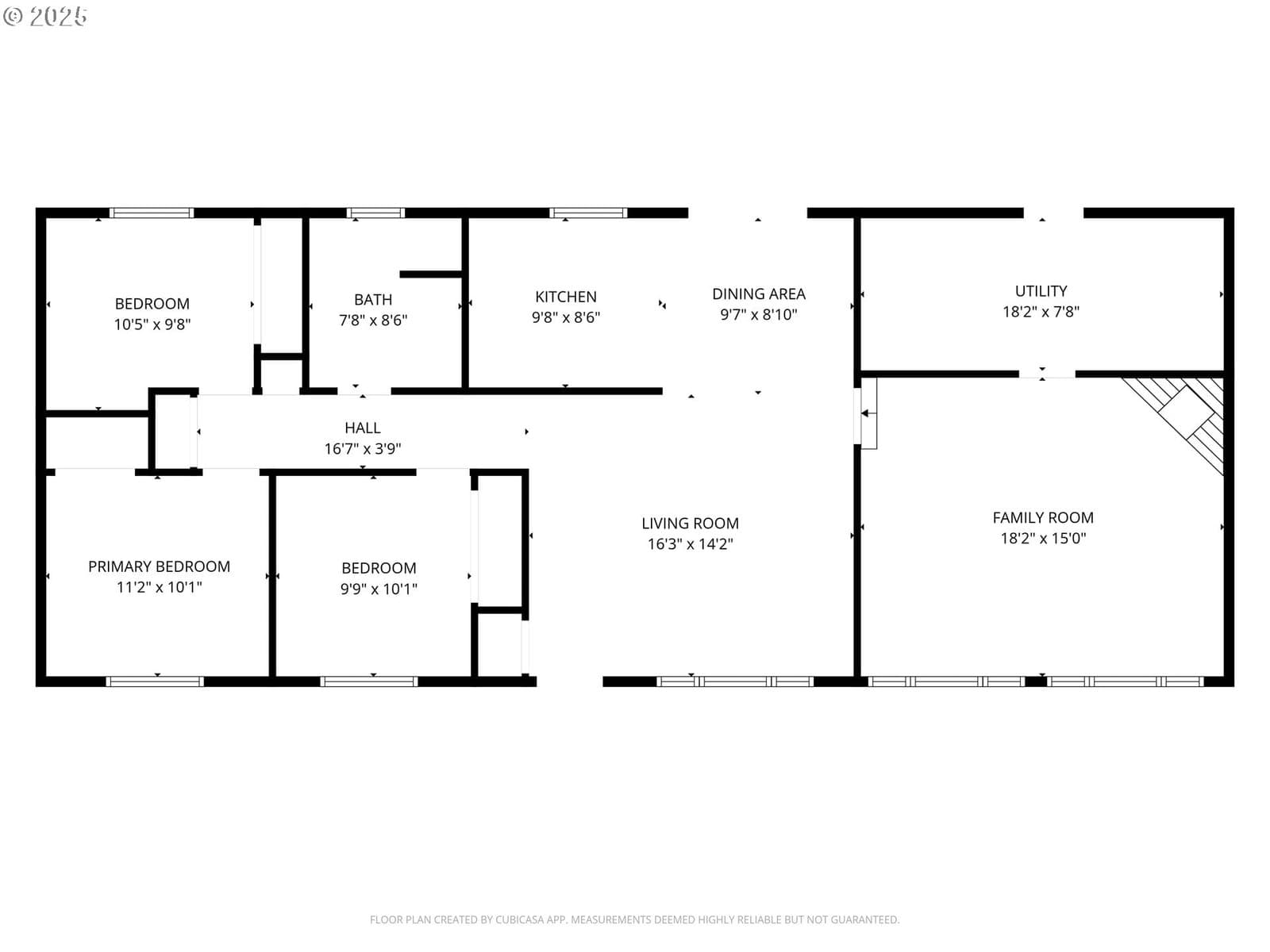
Freshly Updated and Move-In Ready. This 3-bedroom, 1-bath home has been thoughtfully refreshed throughout. The kitchen/dining area opens to both the family room and the great room, creating a functional and inviting layout. Interior Features:- Brand new laminate wood flooring, new trim, and fresh paint throughout the main living areas- Great room with newly installed carpeting- Kitchen upgrades include granite countertops, peel & stick backsplash with a tile look, and a new stove- Utility room off the great room offers ample storage space and potential for an additional bathroom Exterior Features:- Large, fully fenced backyard. Driveway and front walkway recently redone with new concrete. This home is move-in ready and offers modern updates throughout. Schedule your showing today. Back on Market due to buyer losing financing 2 days before closing.Seller just fixed a small belly in the sewer line and new driveway and seller is replacing the roof with in the next couple weeks.
Extras & features
Dishwasher, Disposal, Free-Standing Range
Legal description
INDIAN WELLS ADDITION, LOT 27, ACRES 0.17
Walk Score data provided by Walk Score®