/
$399,900
141days on marketSold$400,000 · February 3, 2026
$399,900
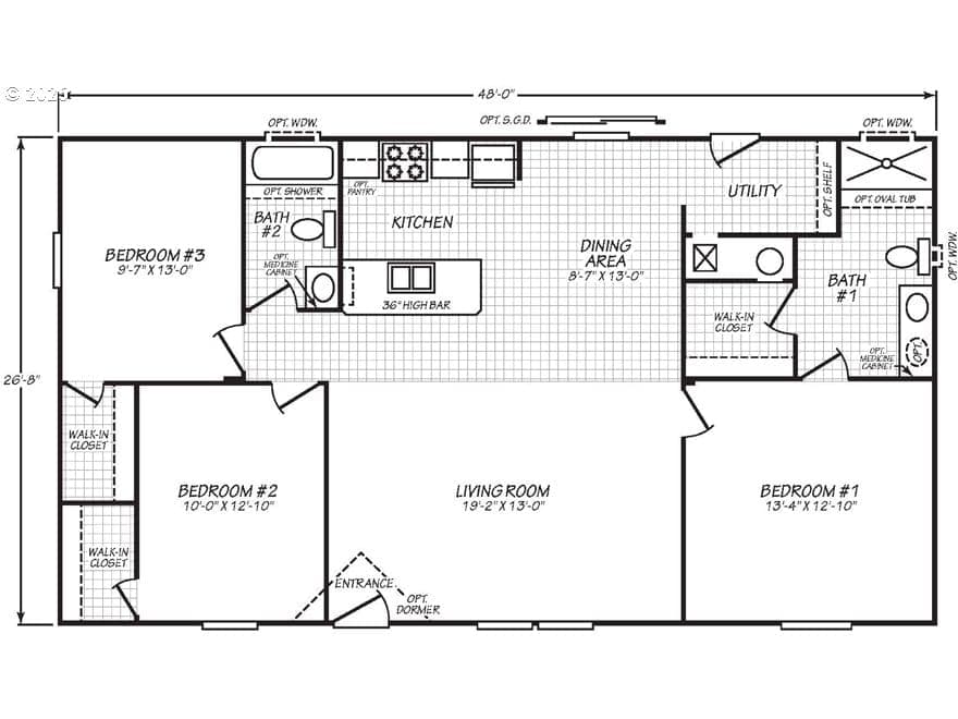
New 2025 manufactured home with ample parking, including a spot to park large vehicles and RVs. This floor plan features an open kitchen design with solid-surface countertops and new appliances. The primary suite is very spacious, with a jack-and-jill bathroom and a large walk-in closet. The open concept is great for entertaining and large families. The property has a yard space, can park several vehicles, and a carport will be built prior to closing.
Extras & features
Dishwasher, Disposal, Plumbed For Ice Maker
Legal description
NEW COLONY PARK ADD LOT 9 BLK 1
Walk Score® data provided by Walk Score