/
$569,000
44days on marketSold$623,000 · March 16, 2026
$569,000
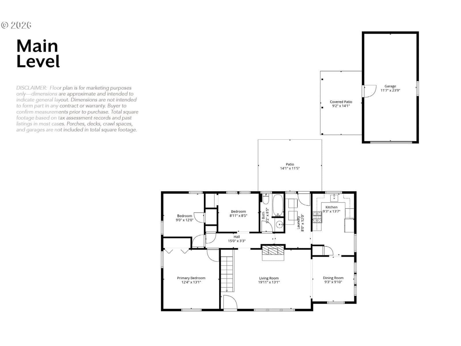
This stylish mid-century ranch in the conveniently located Roseway neighborhood offers classic charm with a dreamy oversized lot, thoughtful upgrades, and a light-filled basement full of equity-building potential. The main level features a spacious living room and dedicated dining area framed by a delightful archway detail. Single level living is made easy-breezy with 3 beds and laundry on the main level, while the expansive lower level delivers noteworthy opportunities for expansion with high ceilings and oversized windows. Major groundwork has already been completed with a waterproofing system installed by Terra Firma in 2021, tackling one of the most important (and expensive) steps of a future basement build-out. A remaining waste line from a previously existing bathroom makes adding a 2nd bath more straightforward for anyone wanting additional living space or the potential for an income-producing ADU (buyer to perform due diligence).The kitchen, revamped w/quartz counters and new fixtures, boasts a layout that makes expansion possible w/out sacrificing key living spaces. Removing the wall separating the laundry creates 200+ SqFt of kitchen area for abundant countertops and storage. Laundry can be relocated or seamlessly integrated within cabinetry to conceal a stackable unit.Outside, the yard is a dream for gardeners, urban farmers, and those seeking extra space where people and pets can play freely. A fenced garden area w/ideal sun exposure sets the stage for thriving vegetable beds and plenty of farm-to-table dinner party inspiration. Just off the garage, a covered patio creates a perfect gathering spot, rain or shine. The long driveway provides convenient RV parking. Lovingly maintained over the past 8 years, the seller invested in the addition of A/C (2019), PEX plumbing (2020), water heater (2020), electrical updates (2018), and thoughtful cosmetic enhancements throughout. This gem is dialed in and ready for its next chapter! [Home Energy Score = 4. HES Report at https://rpt.greenbuildingregistry.com/hes/OR10131351]
Extras & features
Gas Water Heater, Washer, Dryer, Dishwasher, Free-Standing Range, Free-Standing Refrigerator
Legal description
WELLINGTON, BLOCK 5, LOT 29-31
Walk Score® data provided by Walk Score