/
$639,999
10days on market$639,999
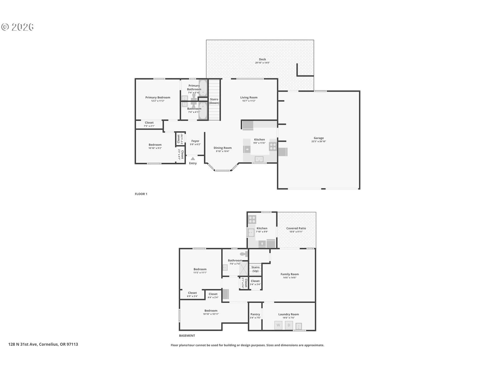
Enjoy space, flexibility, and convenience just minutes from Hillsboro on this expansive half-acre property. This versatile home offers four bedrooms and three full bathrooms, providing ample room for comfortable living and entertaining. The lower level features a second, commercial-style kitchen—ideal for multi-generational living or potential ADU use—and opens to a covered patio overlooking the large backyard. An above-ground pool creates the perfect setting for summer gatherings or relaxing evenings outdoors. A separate, fully finished and insulated space with power offers endless possibilities for a workshop, studio, or home office. Additional highlights include RV parking, green space behind the property for added privacy, and an oversized garage with high ceilings and dedicated circuits—perfect for hobbies, storage, or projects. A unique opportunity offering space, versatility, and a prime location close to all that Hillsboro has to offer.Mortgage savings may be available for buyers of this listing.
Extras & features
Gas Water Heater, Dishwasher, Free-Standing Range, Free-Standing Refrigerator, Range Hood
Legal description
RYLAND PARK, LOT 36, ACRES 0.51
$665,000
3121 NE Glencoe Oaks PlHillsboro, OR 97124
Status: EXP
4 beds · 3 baths · 2,003 SQFT
Walk Score data provided by Walk Score®