/
$490,000
57days on marketSold$500,000 · March 1, 2026
$490,000
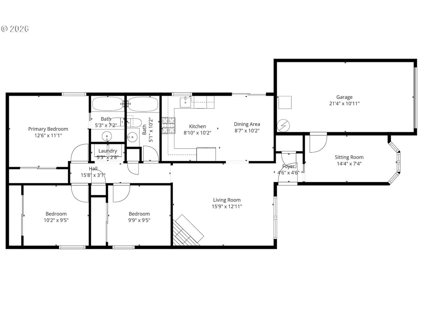
Single-level, move-in ready ranch just blocks from the vibrant SE Foster corridor in the heart of Mt. Scott-Arleta. This thoughtfully updated home offers the ease and comfort — without the looming to-do list.A welcoming front porch invites you in, where vaulted ceilings and a cozy gas fireplace create an airy yet comfortable living space perfect for everyday living or gathering with friends. The eat-in kitchen features granite countertops, a 5-burner gas stove, and generous storage — ideal for weeknight dinners or weekend brunch at home.The primary suite includes a private en-suite bath, while two additional bedrooms and a second full bathroom provide flexibility for family, guests, or roommates. A bonus space offers endless possibilities: home office, den, playroom, creative studio, or workout room — whatever fits your lifestyle.Outside, a covered back deck overlooks a fully fenced yard with raised garden beds ready for your summer harvest. The attached garage includes built-in shelving for abundant storage.Major updates have already been taken care of: new roof and skylights (2024), newly cleaned crawlspace, new heat pump for efficient heating and cooling, new ducting, gutters, and siding repairs completed in 2025. Simply move in and enjoy.Just minutes from the shops, restaurants, coffee spots, and nightlife along SE Foster, this home offers the perfect blend of neighborhood charm and everyday convenience — an ideal fit for anyone looking for comfort, community, and low-maintenance living. [Home Energy Score = 9. HES Report at https://rpt.greenbuildingregistry.com/hes/OR10235155]
Extras & features
Gas Water Heater, Washer, Dryer, Disposal, Free-Standing Range, Free-Standing Refrigerator
Legal description
ARLETA PK 3, BLOCK 3, LOT 9
Walk Score® data provided by Walk Score