/
$399,900
93days on marketSold$388,500 · February 8, 2026
$399,900
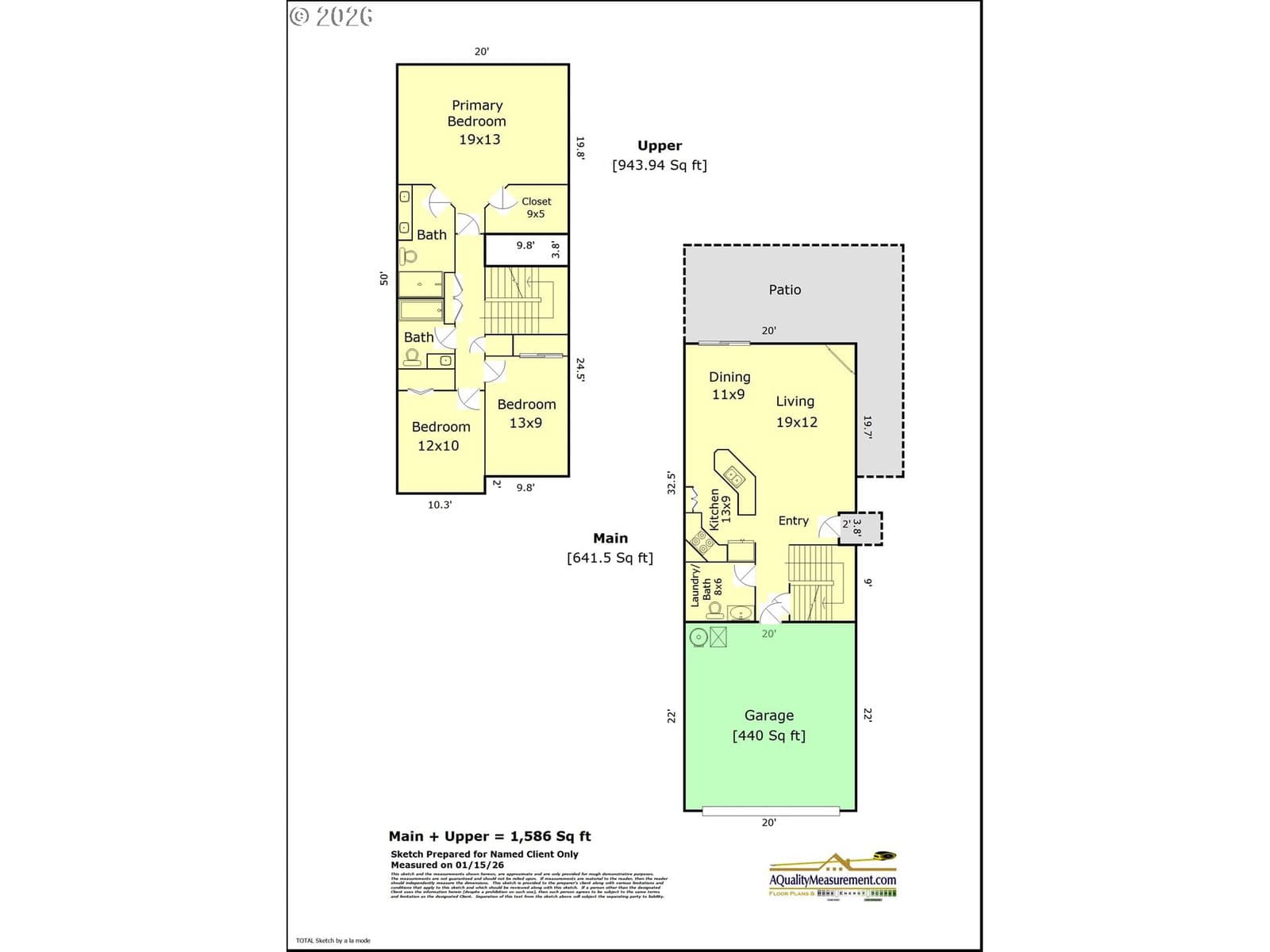
Easy proximity to Downtown Gladstone, Gladstone schools, newer HVAC & roof, quiet culdesac, 2 car garage, and an ideal floor plan & ensuite - this one has it all! The open living, dining, and kitchen sweep you into the main level before flowing easily onto the fully fenced backyard patio, perfect for outdoor evening meals. Upstairs features 3 BD and 2 BA, including an expansive primary suite with vaulted ceilings, an attached bathroom, and a walk-in closet. Fully move-in ready with a 5 year old furnace, 2 year old central AC, fresh interior paint, and 4 year old roof across the complex. With a Walkscore of 73 and a Bikescore of 82, this location lets you make Gladstone your own private enclave, and the 2 car garage and full driveway mean you'll always have space for vehicles if you need to make a longer trip. Detached home living at condo prices!
Extras & features
Gas Water Heater, Washer, Dryer, Dishwasher, Disposal, Free-Standing Range, Free-Standing Refrigerator, Microwave
Legal description
CONDOMINIUM MORGAN MEADOWS STAGE 1 UNIT 162 3608
Building amenities
Walk Score data provided by Walk Score®