/
$1,337,975
317days on marketSold$1,275,000 · February 25, 2026
$1,337,975
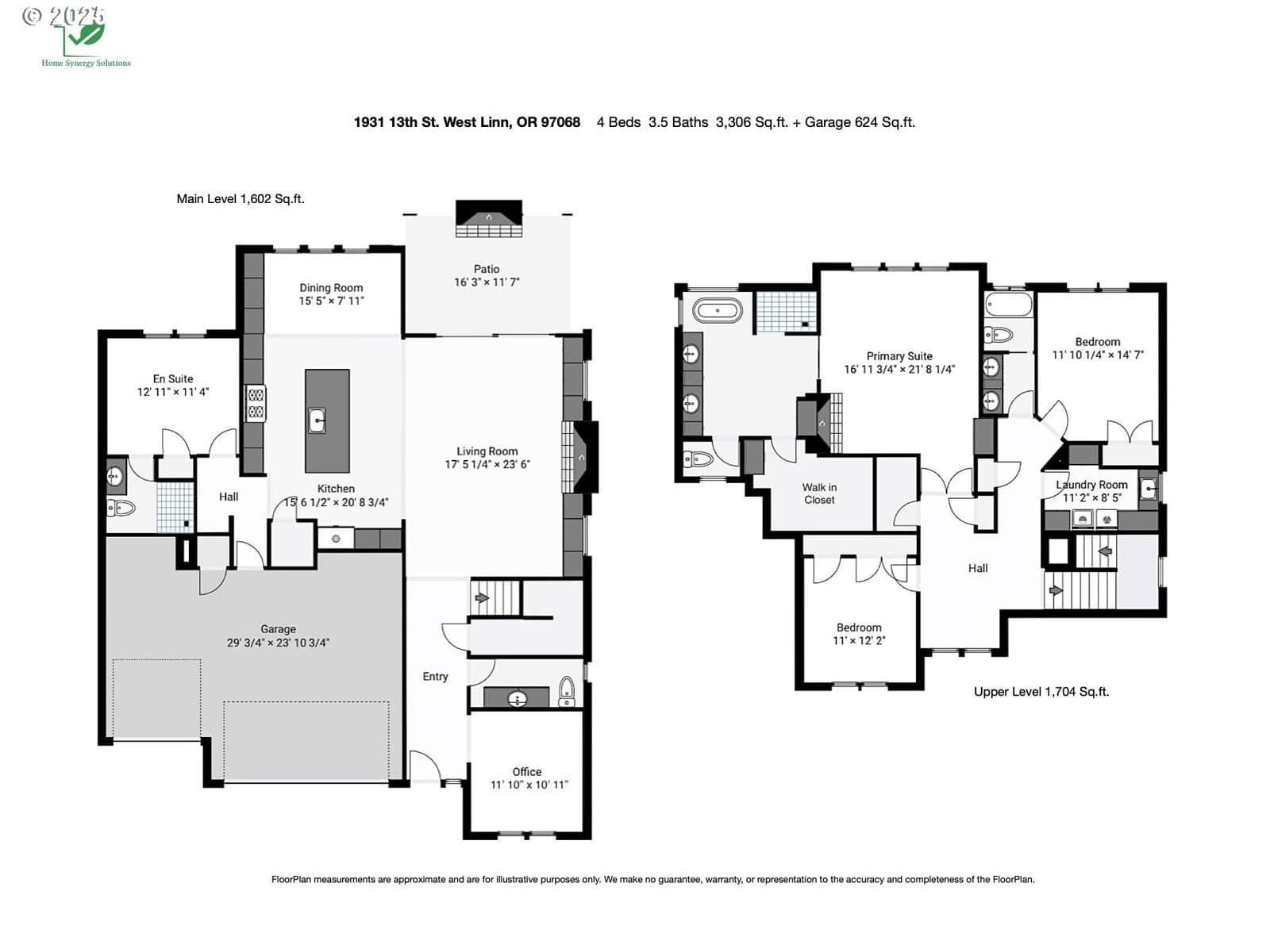
Open House Saturday 1-3PM. Welcome to this beautiful home located within one of West Linn's most coveted neighborhoods, this nearly brand new modern farmhouse, crafted by the illustrious Gerritz Custom Homes, radiates timeless elegance and sophistication. As you approach the property, the welcoming driveway heralds the grandeur that awaits within. Stepping through the front door, you are immediately enveloped by the opulent ambiance that defines every inch of this bespoke residence. The sprawling living room, paired with the gourmet chef's kitchen, provides the perfect canvas for hosting unforgettable gatherings. The kitchen, a culinary dream, boasts an expansive quartz island, a spacious walk-in pantry, a sleek built-in wine fridge, and state-of-the-art Dacor appliances. The ambiance is further enhanced by the twin floor-to-ceiling stone fireplaces and the cedar-covered back patio, creating an atmosphere of elegance. In the heart of the home, a tranquil water feature flows seamlessly in the backyard, creating a serene oasis that invites you to unwind and relax. The main level also features a versatile office/den space and a guest suite with an attached full bath, graced with a floor-to-ceiling tile shower. Ascend to the second floor, and you'll discover a generously proportioned primary suite that evokes the essence of a luxury spa retreat, complemented by two additional bedrooms and a laundry room. This stunning abode is ideally located within walking distance to charming shops, summer street market, restaurants, the esteemed Willamette Primary School, Willamette Park and the Willamette River with boat launch. West Linn, a community known for its top-tier schools and warm, safe atmosphere, is the perfect backdrop for this exquisite home. Take a virtual journey through the video tour and immerse yourself in the beauty of this exceptional residence. We invite you to come and experience the splendor of this captivating home in person.
Extras & features
Gas Water Heater, Built-In Range, Built-In Refrigerator, Dishwasher, Microwave
Legal description
PARTITION PLAT 2017-063 PARCEL 2
Walk Score® data provided by Walk Score