/
$599,000
99days on marketSold$590,500 · January 27, 2026
$599,000
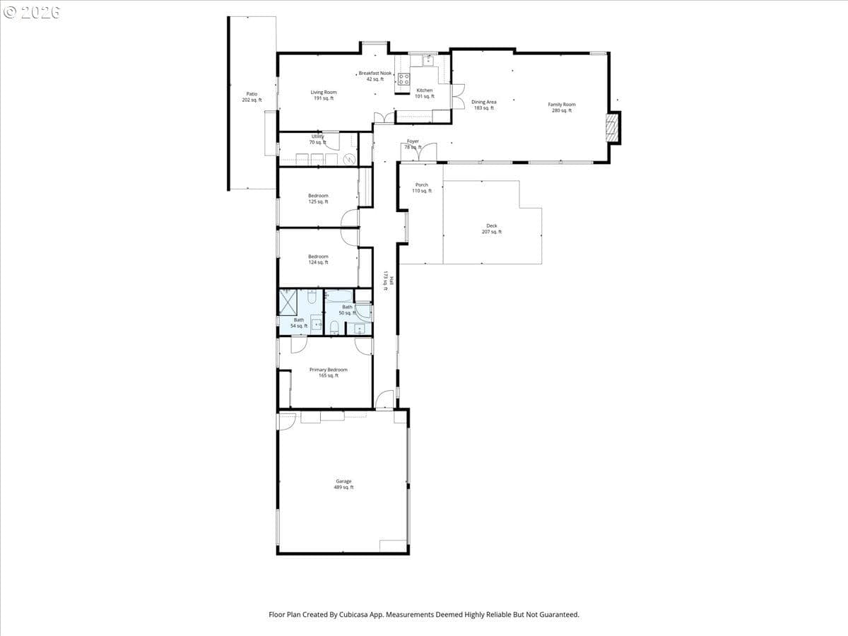
Mid-century charm meets modern updates in the coveted Four Seasons neighborhood. This rare one-level 1969 home welcomes you with a double-door entry, vaulted dining area, and a sunken living room with a white fireplace featuring a wall-to-wall mantle and soft backlighting. Walls of windows fill the home with natural light and the kind of character you simply can't find often. The kitchen offers tiled countertops, gold accents, and a pass-through to the pop-out breakfast nook window perfect for greenery. Just beyond, a cozy family room opens to the brick patio. The spacious primary suite includes mirrored closet doors and a recently updated bathroom with a tiled walk-in shower. Two additional bedrooms and a modernized hall bath round out the thoughtfully designed single-level layout. Major improvements make this home truly move-in ready, including a new $50K roof with 30-year warranty, new gutter guards, a new composite front deck, fresh interior paint, new microwave, and updated bathroom vanities, faucets, and lighting. Low-maintenance bark-dust landscaping and mature trees let the architecture shine. Enjoy a peaceful HOA setting with trees, creeks, a clubhouse, and pool, all just minutes from Cedar Hills Crossing with shopping and eateries, downtown Beaverton, Nike, and Hwy 217.
Extras & features
Gas Water Heater, Washer, Dryer, Dishwasher, Disposal, Free-Standing Range, Microwave
Legal description
FOUR SEASONS NO.02, LOT 19, ACRES 0.25
Building amenities
Walk Score data provided by Walk Score®