/
$715,000
57days on marketSold$715,000 · March 3, 2026
$715,000
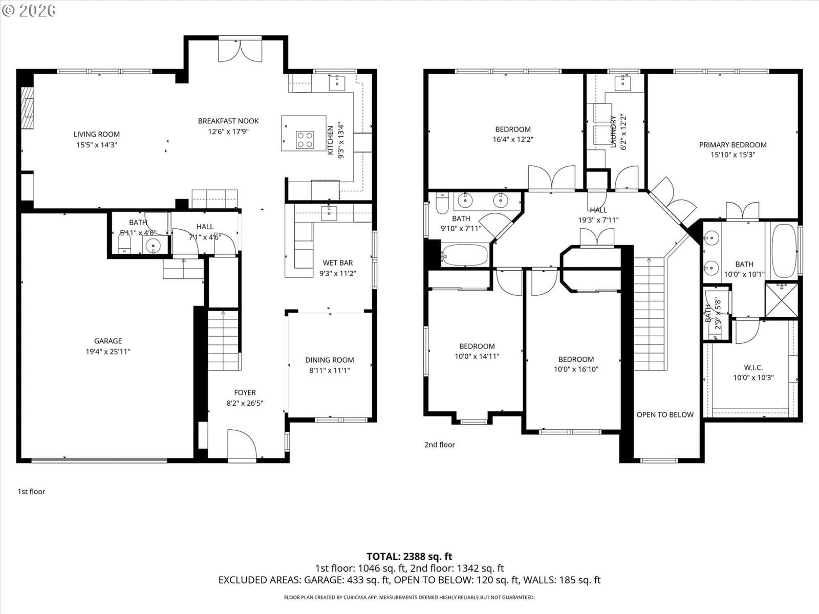
Truly an entertainer’s retreat, this beautifully updated Renaissance Home is perfectly positioned backing to serene greenspace, offering privacy and a peaceful backdrop. Thoughtfully refreshed throughout, the home features fresh interior paint, brand-new carpet, and newly refinished hardwood floors, creating a crisp, turnkey feel. The updated kitchen features a premium Wolf induction range, Miele dishwasher, and open great room. A custom wet bar elevates entertaining, while the newly stained oversized deck invites indoor-outdoor living—ideal for summer gatherings or quiet evenings overlooking the greenspace. The low-maintenance turf yard adds year-round beauty and functionality. Located in the highly sought-after Sherwood community, known for its top-rated schools and exceptional athletic programs, this home also offers unbeatable walkability to neighborhood parks, charming boutiques, and popular dining in Old Town Sherwood. A rare opportunity to enjoy luxury, lifestyle, and location—a detailed list of upgrades available upon request.
Extras & features
Oven, Gas Water Heater, Convection Oven, Dishwasher, Disposal, Microwave
Legal description
RENAISSANCE AT CEDAR CREEK EAST, LOT 22, ACRES 0.13
Walk Score data provided by Walk Score®