/
$135,000
2days on market$135,000
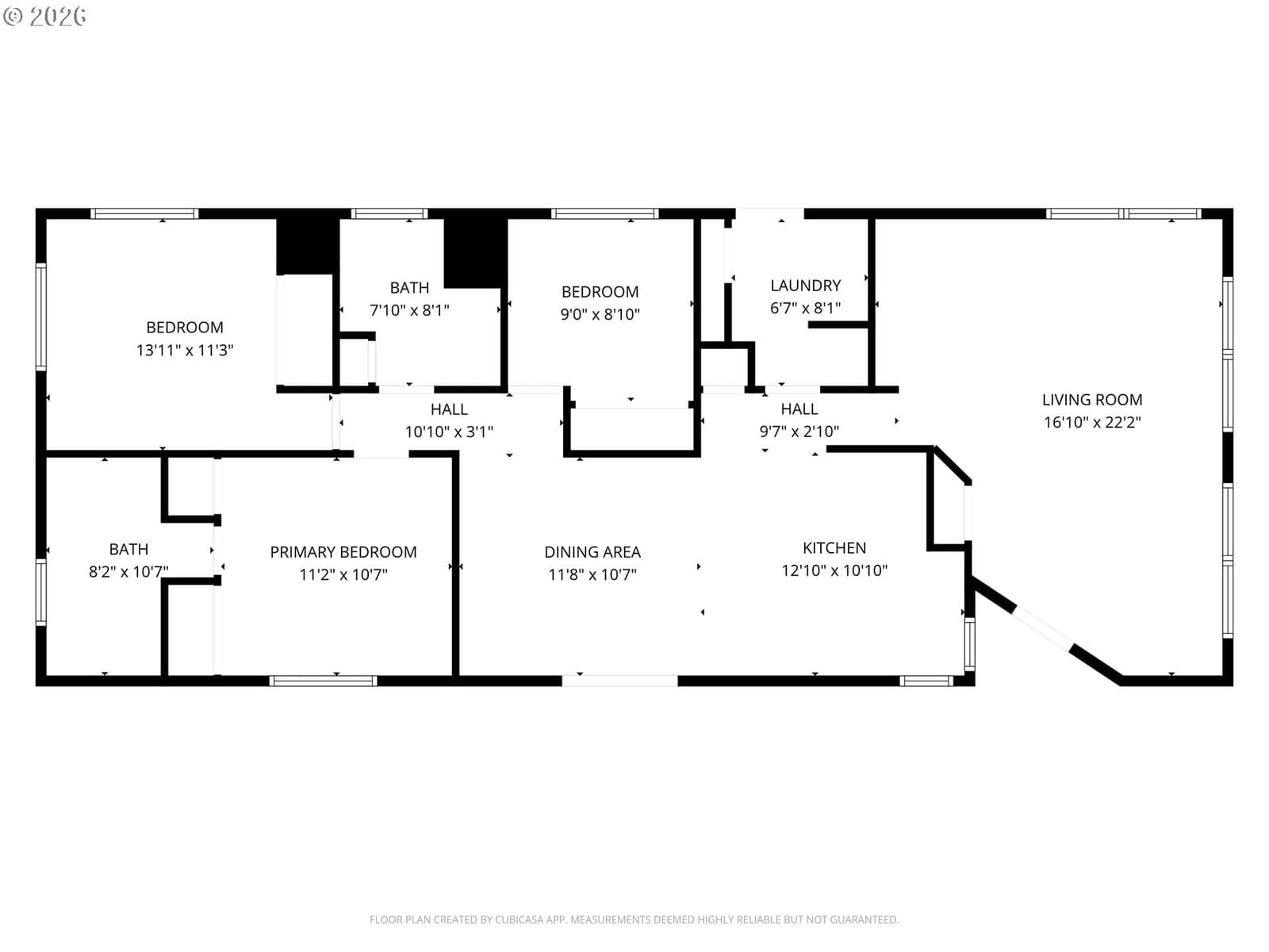
Welcome to easy, comfortable living in Kelso’s desirable 55+ Brook Hollow RV Park! This well-designed 3-bedroom, 2-bath, 1,433 sq. ft. double-wide manufactured home offers both space and charm. Enjoy a bright front living room filled with natural light from expansive windows, plus a cozy family room with a sliding door that opens to a covered deck—perfect for relaxing or entertaining year-round. The kitchen is thoughtfully equipped with bar seating, a pantry, built-in oven, cooktop, and microwave, making meal prep a breeze. A standout feature is the beautiful built-in, lighted curio/china hutch, ideal for showcasing your favorite pieces. The primary suite provides comfort and convenience with dual closets and a private bath featuring a step-in shower, while two additional bedrooms offer flexibility for guests or hobbies. A utility room just off the kitchen adds valuable extra storage and direct access to the carport. Sellers recently added a large storage shed and new appliances. This home combines function and style in a welcoming community setting. Sale is subject to park approval of the buyer.
Extras & features
Oven, Washer, Dryer, Dishwasher, Free-Standing Range, Free-Standing Refrigerator, Microwave
Legal description
25 -8N -2W VIN# 0534; 1977 GUERDON VANDYKE 2460.
Building amenities
Walk Score data provided by Walk Score®