/
$600,000
$600,000
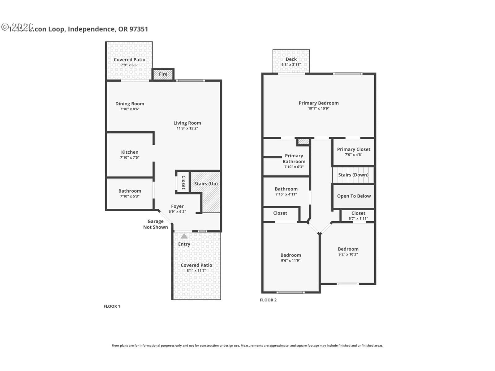
Townhome-style duplex with functional layouts and private fenced backyards. Open main-level living with the living room off the kitchen featuring a gas fireplace, eat-up bar, and dedicated dining area, plus a sliding door that opens to the patio and yard for easy indoor-outdoor flow. Main floor also includes laundry and a convenient half bath. Upstairs offers all three bedrooms, including a primary suite with vaulted ceilings, en suite bath, walk-in closet, and private deck, along with a full hallway bathroom. Well-designed layout provides separation between living and sleeping areas, offering flexibility for comfortable living or strong rental appeal.
Walk Score data provided by Walk Score®