/
$500,000
42days on marketSold$512,500 · March 16, 2026
$500,000
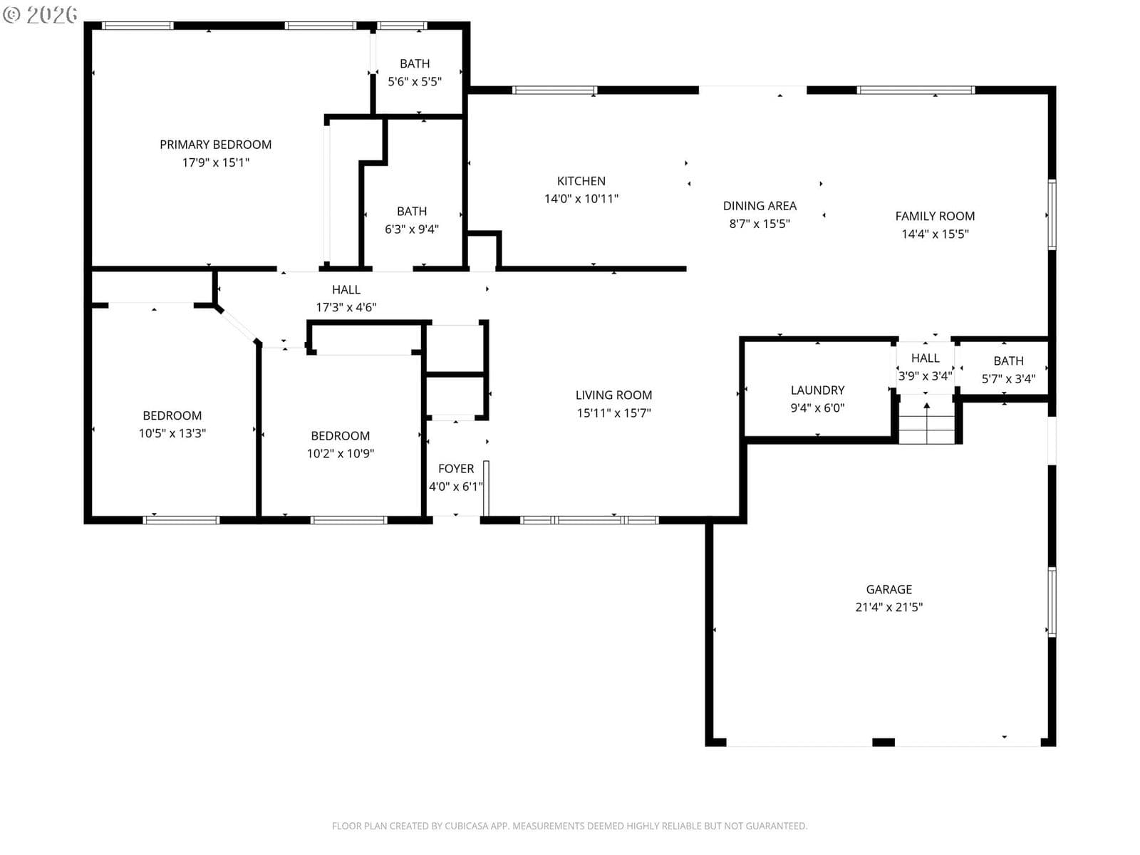
Charming, move-in ready, single-level ranch in desirable Happy Valley, offered at a rare price point for the area. Conveniently located near parks, shopping, dining, and everyday amenities, this home offers the lifestyle many Portland-area buyers are looking for. Fresh interior and exterior paint give the home a bright, updated feel, while the comfortable layout makes single-level living easy and practical, perfect for first-time buyers or those ready to step away from stairs and enjoy the simplicity of one-floor living.The backyard provides plenty of space to imagine possibilities, along with a garden ready for planting. A beautiful deck overlooks peaceful green space, creating a perfect setting for morning coffee or relaxed evenings outdoors. Well-maintained landscaping and a spacious two-car garage with electric car charger add everyday functionality and charm. With its move-in ready condition, convenient location and rare price point for Happy Valley, this home is an outstanding opportunity to enjoy comfortable living.
Extras & features
Oven, Gas Water Heater, Washer, Dryer, Built-In Range, Free-Standing Refrigerator, Microwave
Legal description
2461 IMPERIAL EST LT 8
Building amenities
Walk Score data provided by Walk Score®