/
$322,000
113days on marketSold$315,000 · January 27, 2026
$322,000
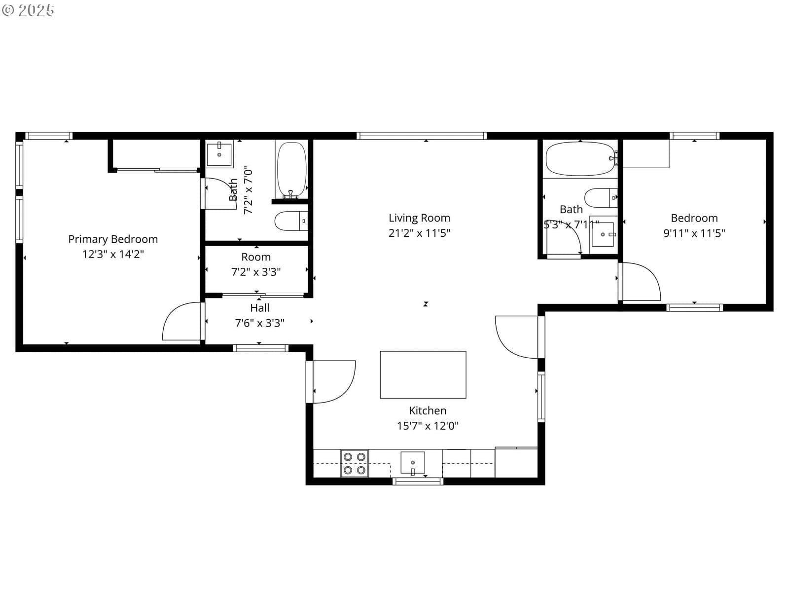
WOW! Experience modern living in this thoughtfully maintained and beautifully appointed 2-bedroom, 2-bath home with breathtaking city and valley views, located just minutes from town with easy access to restaurants, shopping, and the I-5 corridor. This home was rebuilt from the studs out and remains in exceptional condition. The exterior features a newer roof, windows, siding, exterior paint, gutters, fixtures, and a spacious deck ideal for enjoying the expansive views. A freshly graveled driveway and parking area enhance curb appeal and functionality. Inside, the open floor plan showcases LVP flooring, fresh interior paint, and stylish modern fixtures throughout. The kitchen serves as the heart of the home with quartz countertops, a butcher block island with bar seating, and stainless steel appliances, making it perfect for both everyday living and entertaining. A low-profile ductless mini-split system provides efficient heating and cooling year-round. The primary bedroom is positioned opposite the second bedroom for privacy and offers stunning views from every window along with an attractive en-suite bathroom featuring a walk-in shower. The downstairs area offers flexible potential for a third bedroom, workshop, hobby room, or additional storage. The home has been operated to a very high standard and consistently maintained, meaning it has benefited from regular professional cleaning and proactive upkeep. It is offered fully furnished, well appointed, turnkey, and truly move-in ready, allowing the next owner to step in without projects or delays. With updated insulation, sheetrock, electrical, and interior plumbing, this home feels nearly brand new and offers the perfect blend of modern updates, comfort, and ease. Schedule your private tour today.
Extras & features
Dishwasher, Microwave
Legal description
MILLERS ADD, BLOCK 20, LOT 6 & 7, ACRES 0.23
Walk Score data provided by Walk Score®