/
$350,000
94days on marketSold$350,000 · February 16, 2026
$350,000
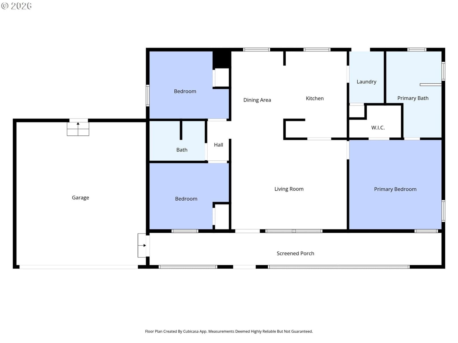
This ones a BEAUTY! Meticulously maintained inside and out! A 3 bedroom, 2 bathroom home like this doesn’t come along often. Nestled in a quiet, established neighborhood, this property offers comfort, privacy, and pride of ownership at every turn. The fully fenced yard, featuring mature landscaping that provides year round beauty and a sense of serenity. Enjoy morning coffee or evening gatherings under the covered patio or out on/in your enclosed porch. An oversized 2 car garage and garden shed offers room for vehicles, projects, and more. Ramp access this home blends practicality with freedom and ease. Newer windows bring in abundant natural light, and the updated bathrooms add a fresh, modern feel. Major systems have been responsibly upgraded, giving buyers peace of mind for years to come. Fresh interior paint. Every space feels clean, inviting, and move in ready. This is the kind of home that instantly feels right the moment you step inside, offering comfort, charm, and long lasting value. OH and did I say NO HOA'S!
Extras & features
Dishwasher, Free-Standing Range, Free-Standing Refrigerator, Range Hood
Legal description
FAIRHAVEN ESTATES, LOT 6, ACRES 0.13
Walk Score data provided by Walk Score®