/
$2,499,900
3days on market$2,499,900
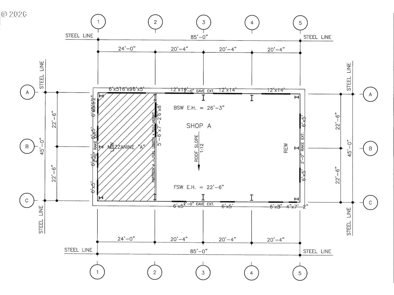
Exceptional opportunity to acquire a flex industrial development currently under active construction in a growing Washougal location. The project features two thoughtfully designed shop buildings, each offering four grade level roll up bay doors for easy drive in access. The layout supports a wide range of uses including contractor space, storage, light industrial, and small business operations. The buildings are designed with high ceilings and efficient open layouts, with select units offering mezzanine space for added flexibility. Clear heights vary across the structures due to the sloped roof design, allowing for expanded vertical storage and functional workspace. Each bay is positioned for direct vehicle access, supporting practical day to day operations. The site is planned for 17 paved parking spaces, a designated trash enclosure area, and a defined driveway approach that allows for smooth vehicle circulation throughout the property. The layout is designed to maximize usability of the ~0.35 acre site while maintaining accessibility and separation between bays. Modern exterior design and low maintenance construction are intended to provide long term durability and reduced operating concerns. The project is configured to support multi tenant occupancy, offering flexibility for owner users or investors seeking a scalable income producing asset. The site is currently under active development and not yet fully complete - BUILD TO SUIT options available. Situated with convenient access from E St and nearby arterial routes, the property benefits from a strategic location in an area experiencing continued growth and demand. Buyer to perform due diligence regarding permitted uses, construction status, and final specifications.
Legal description
WRIGHTS ADDN WASHOUGAL #1 LOTS 7 & 8 BLK 2 FOR ASSESSOR USE ONLY
Walk Score data provided by Walk Score®