/
$349,900
19days on marketSold$386,000 · April 10, 2026
$349,900
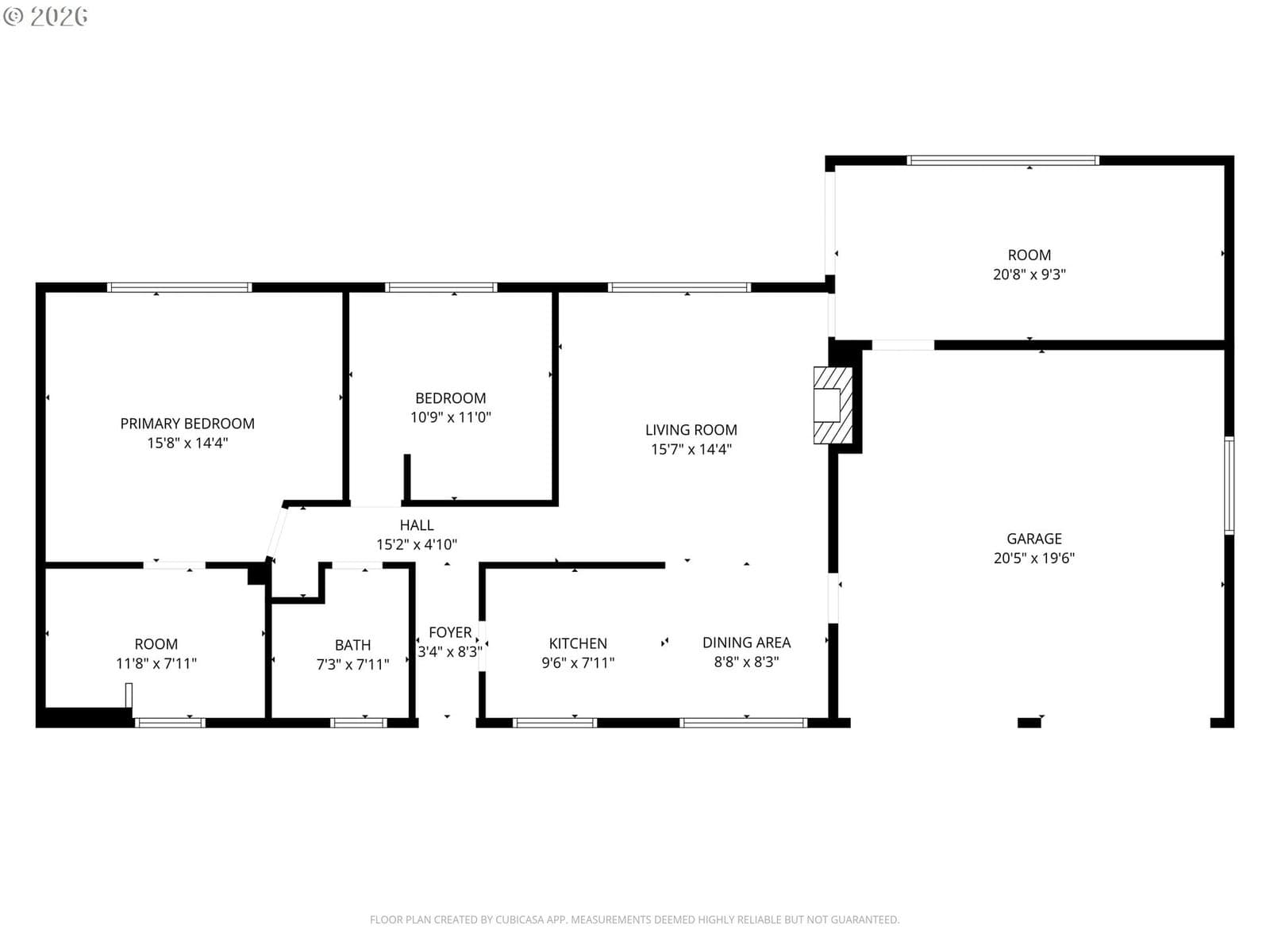
Fixer opportunity in an excellent neighborhood with strong upside potential. This 3-bedroom home currently has one operable bathroom, with an oversized space for a second full bathroom ready to be built out to create a primary suite. The third bedroom is located off the back of the garage (see floor plan for details). Features include a fireplace, an attached 2-car garage, and a large, level lot with a deck and fenced yard. Close to schools, parks, downtown Beaverton, Nike, and more. Home will not qualify for conventional financing; rehab loan or cash only.
Extras & features
Gas Water Heater
Legal description
WILSON PARK NO.03, LOT 93, ACRES 0.16
Walk Score data provided by Walk Score®