/
$389,000
47days on marketSold$463,000 · March 13, 2026
$389,000
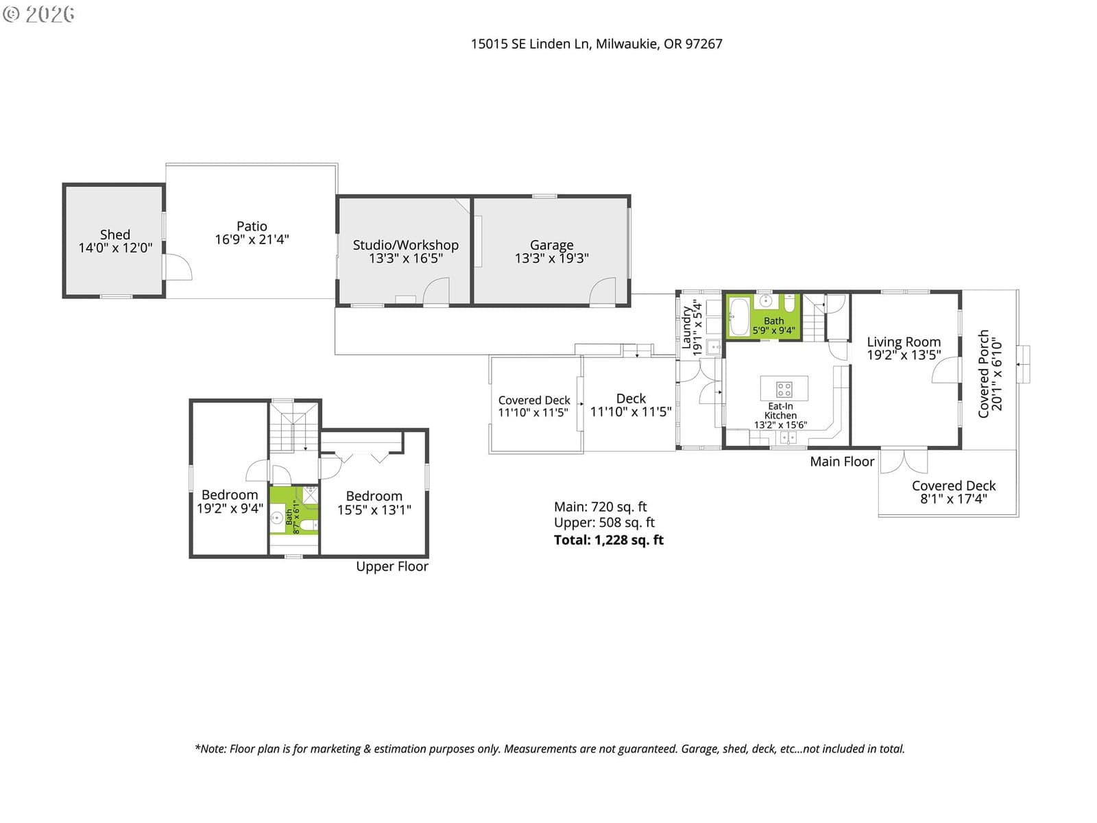
Sweet vintage vibe farmhouse with an incredible backyard retreat! This Milwaukie jewel box blends an open, light-filled floor plan with timeless charm and thoughtful modern updates. The generous living room offers abundant windows, great flexibility, and views of the inviting wraparound sitting porch. The open eat-in kitchen is ideal for everyday living or entertaining, featuring newer wood cabinets, an eating island, and full appliance package. Guests will love the remodeled main-floor bath showcasing a modern soaking tub, quartz vanity, fresh wainscoting, and a stylish barn door. The converted sunporch creates a delightful laundry space with a sink, built-ins, and three walls of paned windows. Enjoy effortless indoor/outdoor living with direct kitchen access to the backyard—perfect for BBQs and alfresco dining! Upstairs, two ample bedrooms feature cozy carpet and generous closets. The upper full bath includes a tub/shower combo, tile flooring, and a large skylight for natural illumination. Outside, fall in love with the fully fenced backyard offering covered and uncovered decks, a paver patio, and a large studio attached to the garage—ideal for projects, work, or creative pursuits. Mature trees provide shade, while sunny areas are perfect for gardening. The yard has well established perennial plants and trees with potential for lots more. A spacious shed keeps tools, gear, and toys neatly stored. Central air conditioning. 2 year old electric water heater. Located in a peaceful, friendly neighborhood within walking distance of two beautiful parks and nearby schools. Conveniently close to shopping and freeway access for an easy commute. A deep driveway offers abundant off-street parking for guests!
Extras & features
Washer, Dryer, Built-In Range, Dishwasher, Disposal, Free-Standing Refrigerator, Plumbed For Ice Maker
Legal description
2601 LEIGHTONS ADD LT 6
Walk Score data provided by Walk Score®