/
$526,400
184days on marketSold$526,400 · March 7, 2026
$526,400
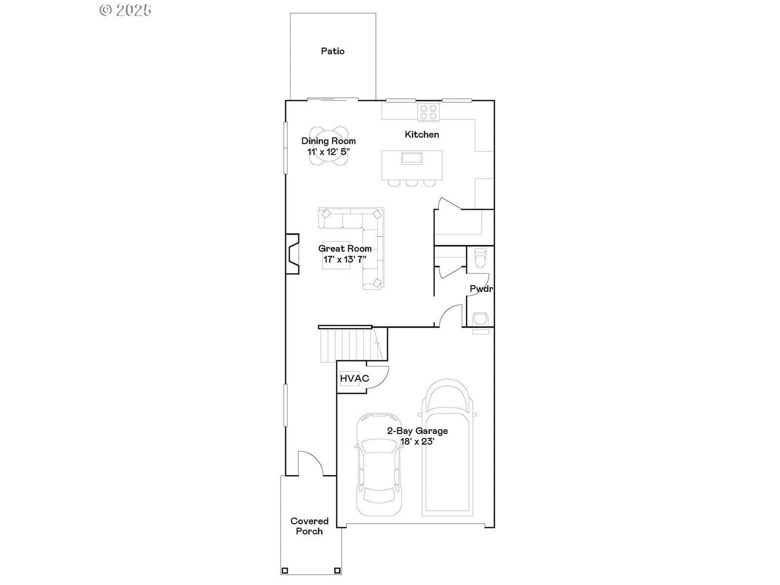
This new construction townhome is located in Autumn Sunrise, a community with a basketball court, playground, and picnic space. The Stella plan features a two-story layout with a main floor that brings together the great room, kitchen and dining area, extending out to the patio. A fireplace creates a cozy focal point, while upstairs a versatile loft is surrounded by three bedrooms, including the primary suite with a connected bath featuring a double vanity and walk-in closet. Interior highlights include quartz countertops, shaker-style cabinets, LVP flooring in the kitchen and entryway, LVT flooring in the baths, two-tone interior paint, fencing, and front yard landscaping. This home also includes central air conditioning, a refrigerator, washer and dryer, and blinds—all at no extra cost! Located on homesite 248, this home is expected to be complete in March 2026. Rendering is artist conception only. Photos are of a similar home, features and finishes will vary. *Below-market rate incentives available when financing with preferred lender.*
Extras & features
Gas Water Heater, Dishwasher, Disposal, Free-Standing Gas Range, Microwave, Plumbed For Ice Maker
Legal description
AUTUMN SUNRISE NO.3, LOT 248, ACRES 0.07
Building amenities
Walk Score data provided by Walk Score®