/
$365,000
16days on market$365,000
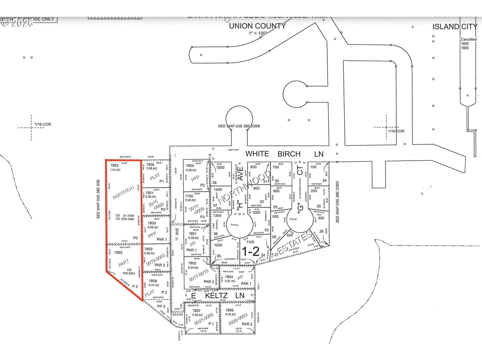
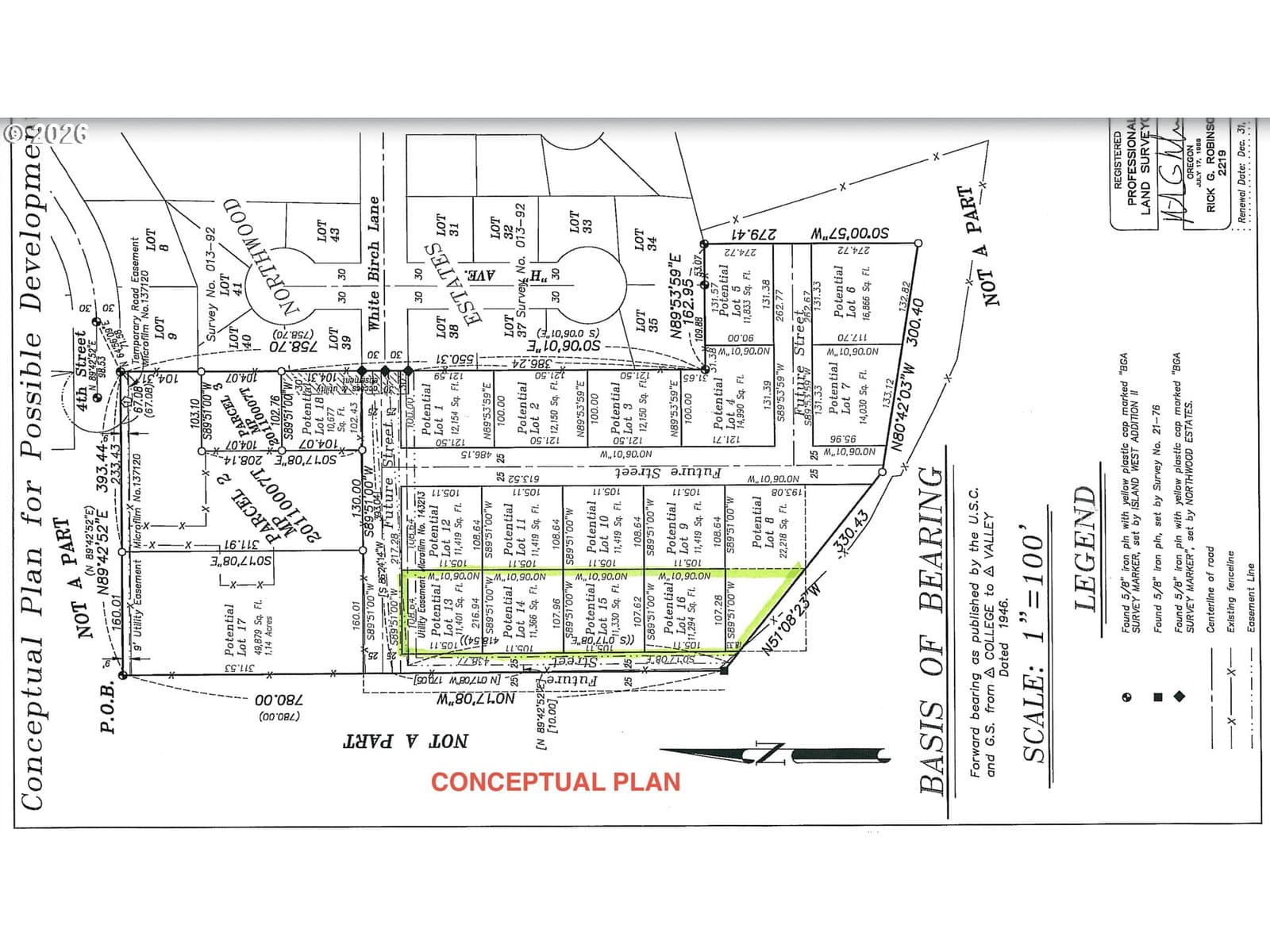
Opportunity to own 1.44 acres on the edge of a desirable Island City neighborhood! This property offers the potential to develop and partition into four buildable lots (each approximately a quarter acre or more). A nice blend of space and flexibility makes it a solid option for development, investment, or creating your own custom setup. Utilities are available and/or nearby, helping to support future plans. The location is hard to beat—just minutes from medical facilities, shopping, dining, and everyday amenities, with the La Grande Country Club just blocks away. You’ll also enjoy mountain views that enhance the overall appeal and setting. Whether you’re looking to build now or hold for the future, this is a versatile piece of ground in a growing, sought-after area. Buyer to perform their own due diligence regarding development potential, lot division, and intended use. Call today for more information!
Legal description
03S3803-BC-01902
Walk Score data provided by Walk Score®