/
$1,185,000
94days on marketSold$1,080,000 · March 10, 2026
$1,185,000
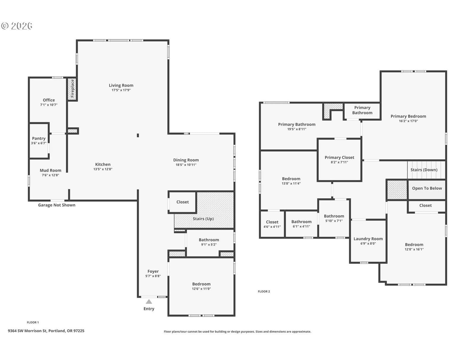
Set in the coveted West Haven neighborhood of Southwest Portland, this beautifully crafted two-story custom home pairs a striking, modern exterior with bright, Scandinavian-inspired interiors. A covered entry welcomes you into a thoughtfully designed main level featuring a flexible bedroom and nearby full bath, a private office with custom built-ins, and a sun-filled living room with vaulted ceilings, fireplace, and walls of windows framing the landscaped backyard. The chef’s kitchen is both stylish and functional, offering stainless steel appliances, a generous island, and a mudroom with ample pantry storage. Upstairs, the vaulted primary suite feels like a retreat, complete with a spa-inspired bath featuring a soaking tub, glass shower, heated floors, double vanity, and walk-in closet. Two additional bedrooms and a full bath complete the upper level. With a fenced yard, two-car garage, and refined finishes throughout, this home delivers effortless comfort with modern elegance.
Extras & features
Gas Water Heater, Built-In Refrigerator, Dishwasher, Free-Standing Range, Microwave, Range Hood, Wine Cooler
Legal description
2020-009 PARTITION PLAT, LOT 2, ACRES 0.14
Walk Score data provided by Walk Score®