/
$475,000
185days on marketSold$475,000 · March 13, 2026
$475,000
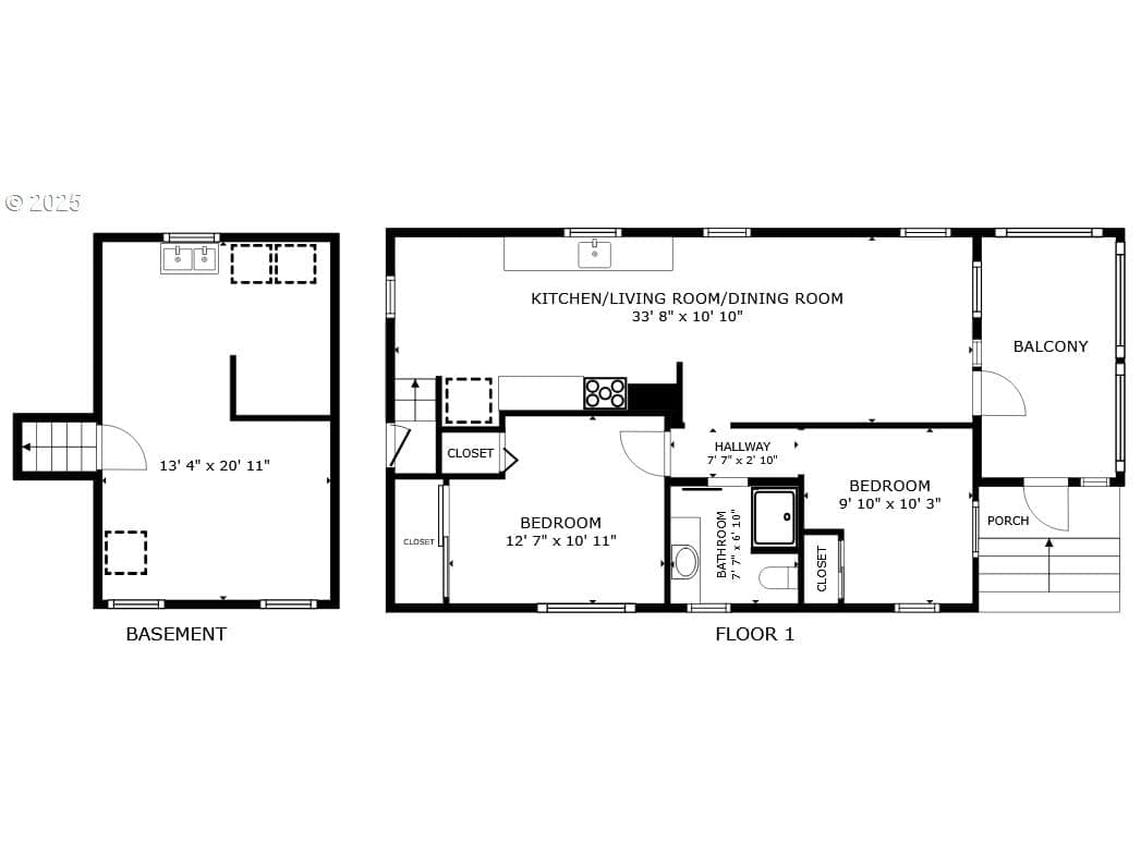
Set in the heart of Portland’s sought-after Hosford-Abernethy neighborhood, this updated bungalow puts you just steps from the shops, restaurants, coffee spots and parks along Clinton & Division. The covered front porch leads into a light-filled sunroom entry—perfect for morning coffee or plant lovers. Inside, enjoy new luxury vinyl plank flooring, fresh interior and exterior paint, new trim and baseboards, modern fixtures, ceiling fans and newer vinyl windows. Remodeled kitchen features quartz countertops, white shaker cabinetry, stainless steel appliances, a garden window and an eating area. Both bedrooms offer great natural light and mirrored closets, with one featuring double closets for added storage. The updated bathroom includes a tiled walk-in shower, quartz vanity, new toilet and built-in storage. The recently painted basement offers laundry and flexible space with future potential for expansion, a home office or studio. Detached oversized one-car garage, long driveway with RV or boat parking and front and back yards ready for gardening or entertaining. With a Walk Score of 93 and Bike Score of 100, plus access to the highly regarded Abernethy, Hosford and Cleveland school path, this home blends classic Portland charm with modern updates and an unbeatable location. [Home Energy Score = 4. HES Report at https://rpt.greenbuildingregistry.com/hes/OR10242536]
Extras & features
Washer, Dryer, Disposal, Down Draft, Free-Standing Range, Plumbed For Ice Maker
Legal description
MOULTON & SCOBEYS SUB, BLOCK 2, LOT 4, N 1/2 OF LOT 5
Walk Score data provided by Walk Score®