/
$385,000
17days on market$385,000
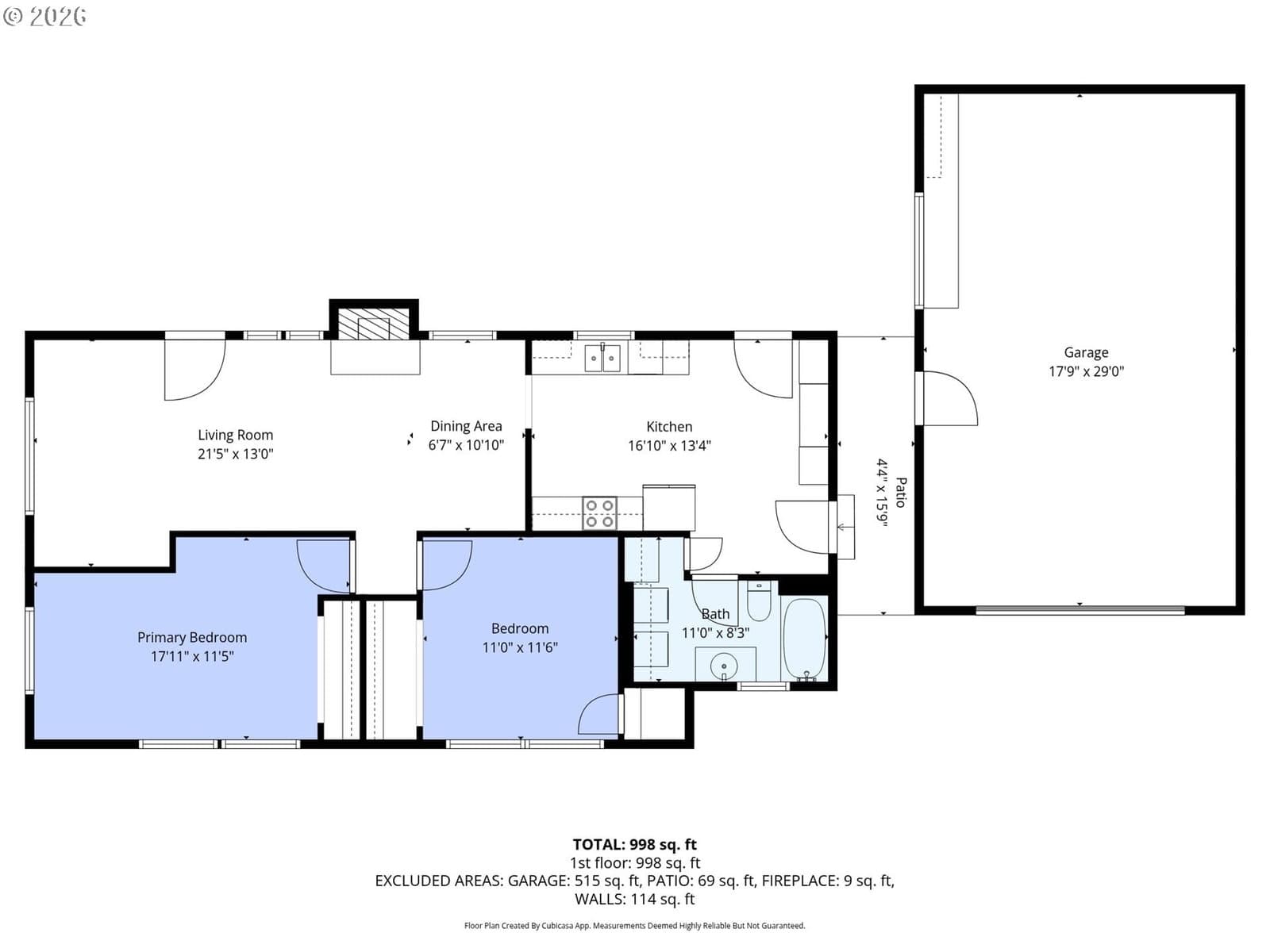
Welcome to this well-maintained, single-level home on a spacious corner lot in Lafayette, right in the heart of Oregon wine country. Surrounded by vineyards and farmland, you’re just minutes from McMinnville, local wineries, and everything the Willamette Valley has to offer. Inside, the home feels bright and comfortable with fresh interior paint and thoughtful updates done over the past few years. The living area is warm and inviting, with a gas fireplace insert that makes it easy to stay cozy in the cooler months. The layout is simple and functional, with good flow between the living, dining, and kitchen spaces. The bedrooms are well-sized and practical, whether you need space for guests, a home office, or everyday living. Outside is where this property really shines. The large, fully fenced yard offers plenty of room to relax, entertain, or garden. There’s also extra side yard space next to the detached garage—perfect for a garden, RV Parking, or additonal storage. With the corner lot, you get extra breathing room and great parking options and space for multiple vehicles. Additional features include a detached garage, electric car charger, and a brand-new generator (never used) for added peace of mind. If you’ve been looking for a solid, move-in ready home with space, updates, and a great location near McMinnville and wine country, this one is definitely worth a look. New interior paint in Feb. 2026, Windows replaced in July 2024, complete plumbing re-pipe in Nov. 2023, floor insulation & vapor barrier installed 2021, replaced kitchen & bathroom flooring in March 2024, partial replacement of fence in Feb 2026, New sink and garbage disposal in Nov. 2021, replaced electrical panel, meter, rewire, plus RV and Generator circuit in Nov. 2021. Seller is providing a one-year home warranty to the new owners.
Extras & features
Gas Water Heater, Washer, Dryer, Dishwasher, Free-Standing Range, Free-Standing Refrigerator, Instant Hot Water, Range Hood
Legal description
LOT 12 & S 20' LOT 1 - BLOCK3 IN MAPLE-PARK ADDITION
Walk Score data provided by Walk Score®